Ingatlanok összehasonlítása

Ritka lehetőség a Széna téren: prémium rendelő / magánegészségügyi szolgáltató helyiség eladó!

Budapest II. Kerület
215.000.000 Ft
2.362.637 Ft / m2

Leírás

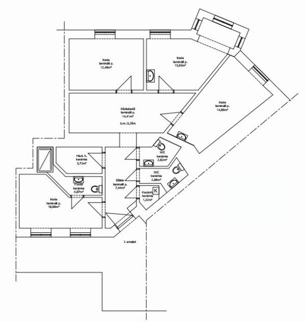
Eladó Budapest I. kerületének egyik legértékesebb részén, a Széna téren, egy teljes körűen felújított, 91 m²-es prémium ingatlan, amelyet kifejezetten magánegészségügyi vagy szépségipari szolgáltatások céljára alakítottak ki. Az ingatlan egy patinás, LIFTES társasház első emeletén található. AZONNAL KÖLTÖZHETŐ, teljes műszaki felszereltséggel, így ideális választás orvosi rendelő, fogászat, esztétikai klinika, gyógytorna, pszichológiai praxis vagy más prémium szolgáltatás számára. Helyiségek elosztása: - 4 különálló, világos kezelőhelyiség (az egyik saját fürdőszobával) - tágas, ügyfélbarát váróterem - teljesen felszerelt személyzeti konyha - 2 különálló mosdó (egyik akadálymentesítési lehetőséggel) - gépészeti sarok Műszaki tartalom: - egyedi mérőórák minden helyiségben - modern Viessmann kazán - klimatizált helyiségek - 3 rétegű hő- és hangszigetelt ablakok - nagy sávszélességű internetkapcsolat Ez az ingatlan nem csupán egy rendelő, hanem egy kész üzleti lehetőség. Kialakítása révén azonnal hasznosítható egészségügyi szolgáltató központként.   A lokáció prémium presztízst biztosít a bérlők és páciensek számára.   Kiváló bérbeadási potenciál, magas éves hozammal.   Környékről:   Budapest egyik legfrekventáltabb közlekedési csomópontja Villamos- és buszmegállók közvetlen közelben. M2 metró megálló 1 percre. Mammut bevásárlóközpont, Millenáris Park, Budai Vár pár perc sétára. *** Rare Opportunity at Széna Square: Premium Medical / Private Healthcare Facility for Sale! For sale in one of the most prestigious locations of Budapest’s District I, at Széna Square, a fully renovated 91 m² premium property, specifically designed for private healthcare or beauty industry services. The property is located on the first floor of an elegant, elevator-equipped building, move-in ready with full technical equipment, making it an ideal choice for a medical practice, dental clinic, aesthetic clinic, physiotherapy, psychological practice, or other premium service provider. The fully equipped kitchen is not part of the purchase price, it is to be acquired for an additional 8 Million HUF. Layout: 4 bright, separate treatment rooms (one with private en-suite bathroom) spacious, client-friendly waiting room fully equipped staff kitchen 2 separate restrooms (one with accessibility option) technical/service corner Technical features: individual utility meters in every room modern Viessmann boiler air-conditioned rooms triple-glazed, sound- and heat-insulated windows high-speed internet connection This property is not just a medical practice, but a ready-to-use business opportunity. Thanks to its professional design, it can be immediately utilized as a private healthcare center. Its premium location provides both prestige and convenience for tenants and patients alike, offering excellent rental potential with attractive annual yield. Prime location – Széna Square: One of Budapest’s busiest transportation hubs Tram and bus stops within walking distance Mammut Shopping Mall, Millenáris Park and Buda Castle just a few minutes away

További adatok

  • Azonosító: 1665269
  • Épület szintjei: 4
  • Emelet: -
  • Méret: 91 m2
  • Szobák száma: 4 db
  • Félszobák száma: 0 db
  • Fűtés: Egyéb
  • Állapot: Felújított
  • Lift: Van
  • Erkély/terasz: -

Elhelyezkedés