Ingatlanok összehasonlítása

Eladó 138 nm-es 6 szobás Ház Budakalász

Budakalász Budakalász
170.000.000 Ft
1.231.884 Ft / m2

Leírás

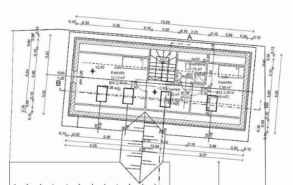
BUDAKALÁSZON A VÁROSKÖZPONTBAN ELADÓ EGY ÚJÉPÍTÉSŰ ÉS EGY FELÚJÍTOTT CSALÁDI HÁZ! KÖRNYÉK: A H5-ös HÉV megálló csupán 6 perc sétára, 450 méterre található, valamint a központi elhelyezkedése lehetővé teszi számos bevásárlási lehetőség, mint például kisboltok 7 perces, de az Auchant is csak 16 perces könnyű megközelítését sétálva. Ezen felül a Kalász Suli Általános Iskola csak 6 percre (450 méterre) található, míg a Nyitnikék Óvoda 9 perc sétával (700 méter) közelíthető meg. A HÁZ JELLEMZŐI: -Telek mérete: 338 nm -A telken két épület található: -Egy 90 nm-es újépítésű családi ház. -Plusz egy teljeskörűen felújított, 48 nm-es ház, ennek besorolása iroda. -A két épület hasznos alapterülete: 137,9 nm. Az újépítésű családi ház jellemzői: -2026 januárban kerül átadásra, 30-as POROTHERM téglából épült, grafitos hőszigetelést kapott. -A tetőt kerámiacserép fedi. -3 rétegű fa nyílászárók. -A fűtésről hőszivattyú gondoskodik, padlófűtéssel. -Plusz hűtő-fűtő klíma is kialakításra került. A felújított ház jellemzői: -2025-ben teljeskörű felújításon esett át, grafitos hőszigetelést kapott. -A tetőt kerámiacserép fedi. -3 rétegű, műanyag nyílászárók. -A fűtésről egy új gázkazán gondoskodik, padlófűtéssel. -Plusz hűtő-fűtő klíma is kialakításra került. FINANSZÍROZÁS: -Tehermentes, banki finanszírozással is megvásárolható, melyben irodánk ingyenes tanácsadással áll rendelkezésükre! VEVŐINK RÉSZÉRE A KÖZVETÍTÉS DÍJTALAN! A hirdetésben szereplő adatok tájékoztató jellegűek!

További adatok

  • Azonosító: 1665008
  • Épület szintjei: 2
  • Méret: 138 m2
  • Telek méret: 338 m2
  • Szobák száma: 6 db
  • Félszobák száma: 0 db
  • Fűtés: Egyéb
  • Állapot: Új építésű
  • Építési év: 2025
  • Ház szerkezete: Tégla
  • Erkély/terasz: -
  • Melléképület: -
  • Tetőtér: -

Elhelyezkedés