Ingatlanok összehasonlítása

Eladó 95 nm-es 5 szobás Ház Gödöllő

Gödöllő
115.000.000 Ft
1.210.526 Ft / m2

Leírás

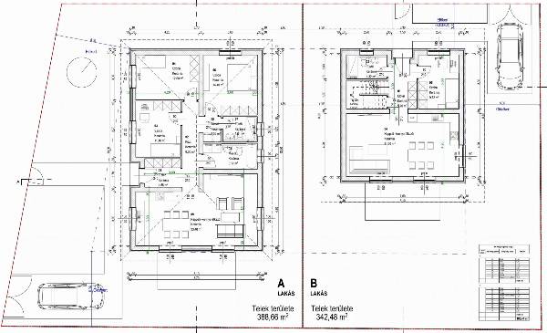
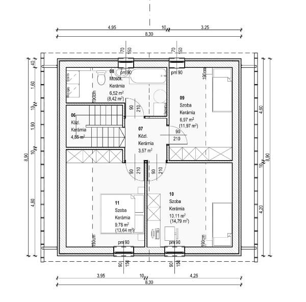
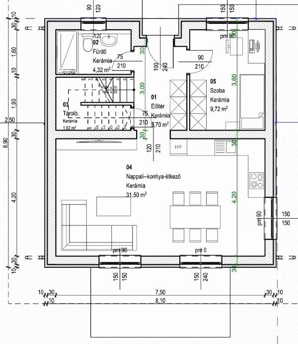
Gödöllő blahai részén, csendes, nyugodt környezetben, nappali + 4 szobás újépítésű ikerházfél referenciákkal rendelkező, megbízható építőtől eladó! Műszaki paraméterek: - 30-as Porotherm tégla falazat + 10cm grafit szigetelés, - beton cserépfedés, - födémen 20cm vastag kőzetgyapot, - 3 réteg üvegezésű, 5 légkamrás hőszigetelt nyílászárókkal, redőny előkészítéssel, - kondenzációs kazán vagy hőszivattyú (+3Mft), padlófűtéssel, - riasztó előkészítés,  - hűtő-fűtő klíma 250.000.-Ft-ig, - bejárati ajtó: 250.000.-Ft, - beltéri ajtók: 70.000.-Ft/db, - kerámia burkolatok 5.500.-Ft/nm, - parketta 4.500.-Ft/nm, - mosdó 20.000.-Ft/db, - WC 30.000.-Ft/db, - csaptelepek 15.000.-Ft/db, - kád 50.000.-Ft, - zuhanyfolyóka 25.000.-Ft, - helyiségenként 1db kiállás + kiállások 25.000.-Ft/db, -  helyiségenként 1db kapcsoló + kapcsolók 35.000.-Ft/db. Elosztás: - Földszint: előtér, nappali-konyha-étkező, kamra/tároló, egy szoba, fürdőszoba + terasz. - Emelet: 3 szoba, közlekedő, mosókonyha/fürdő. Telek: - 342,5nm-es telken helyezkedik el, parkoláshoz kocsibeálló kerül kialakításra, - kaputól a bejárati ajtóig 1m széles, térkövezett járda, - Kerítés díszkővel, fa vagy acél közökkel. Környék: - Csendes, nyugodt környék, Tesco, Lidl, Aldi, éttermek, iskola, óvoda, buszmegálló percek alatt könnyen elérhető. Az ingatlant megbízható kivitelező építi! Burkolatok, belső ajtók a vevői igényei szerint még szabadon választhatók! Kérésre teljes műszaki tartalmat, alaprajzot szívesen küldünk! Várható kulcsrakész átadás: szerződéskötéstől 6 hónap Irányár: 155.000.000.-Ft Hivatkozási szám: 2518227. Megtekinthető telefonos időpont egyeztetés alapján: Sápi Balázs +36 20 772-2429 sapibalazs@godolloi.hu  GÖDÖLLŐ INGATLANKÖZPONT - www.godolloi.hu: Gödöllő és környéke legnagyobb ingatlan választéka /Gödöllő, Szada, Veresegyház, Kistarcsa, Kerepes, Erdőkertes, Fót, Dunakeszi/ eladó-kiadó családi ház, telek, lakás! Ingatlan építés és felújítás!

További adatok

  • Azonosító: 1664869
  • Épület szintjei: 2
  • Méret: 95 m2
  • Telek méret: 342 m2
  • Szobák száma: 5 db
  • Félszobák száma: 0 db
  • Fűtés: Egyéb
  • Állapot: Új építésű
  • Építési év: 2026
  • Ház szerkezete: Tégla
  • Erkély/terasz: -
  • Melléképület: -
  • Tetőtér: -

Elhelyezkedés