Ingatlanok összehasonlítása

Eladó 102 nm-es 4 szobás Ház Üllő

Üllő
80.000.000 Ft
784.314 Ft / m2

Leírás

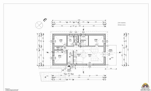
Leírás KIVITELEZŐK, VÁLLALKOZÓ SZELLEMŰEK FIGYELEM!! ÜLLŐ CSENDES RÉSZÉN, BEFEJEZETLEN ( 70%) ÚJ CSALÁDI HÁZ ELADÓ!! Üllő csendes mellékutcájában, eladó egy 70 %-os készültségi fokú befejezetlen most épülő körbejárható, egyszintes 4 szobás, nettó 102 nm-es új családi ház, 550 nm-es telekkel, 17 nm-es terasszal, Igény és ízlés szerint befejezhető, válaszfalak változtathatóak, fűtés egyéni elképzelés szerint kialakítható, hőszivattyú stb. Az ár erre a készültségi fokra vonatkozik!! - műszaki tartalom: új műanyag 3 rétegű nyílászárók, 5 ponton záródó biztonsági bejárati ajtó, tetőszigetelés 30 cm, betoncserép, aljzat szigetelés 10 cm, 15 cm-es külső dryvit szigetelés, főfalak 30 cm-es Porotherm falazó tégla, - infrastruktúra: a közelben, iskola, óvoda, gyógyszertár, orvosi rendelő, üzletek, stb. -közlekedés: pár perc sétára, távolsági buszjárat elérhető. Ingyenes hitel tanácsadással, kedvezményes jogi képviselettel lehetünk segítségére. Energetikai szakvéleményre van szüksége? Jó helyre fordult. Megtetszett az ingatlan, de sajátját még nem adta el? Levesszük a gond nagy részét a válláról, segítséget nyújtunk az eladásban is. Bízza ránk az értékesítését! Kérésre ingyenes értékbecslést is végzünk az ingatlanán,hívjon minket bizalommal.

További adatok

  • Azonosító: 1663980
  • Épület szintjei: 1
  • Méret: 102 m2
  • Telek méret: 550 m2
  • Szobák száma: 4 db
  • Félszobák száma: 0 db
  • Fűtés: Elektromos
  • Állapot: Új építésű
  • Építési év: 2025
  • Ház szerkezete: Tégla
  • Erkély/terasz: -
  • Melléképület: -
  • Tetőtér: -

Elhelyezkedés