Ingatlanok összehasonlítása

Győr-Révfaluban földszinti, nappali + 3 szobás, 2 fürdőszobás, felújított lakás, saját tárolóval eladó!

Győr - Révfalu
99.000.000 Ft
961.165 Ft / m2

Leírás

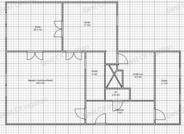
Best of Ingatlan iroda eladásra kínálja Győr- Révfaluban, egy karnyújtásira a Belvárostól, magasföldszinti, nappali + 3 szobás, teljesen felújított, tégla építésű tehermentes lakást, saját tárolóval. ÁRCSÖKKENÉS! NE MARADJON LE RÓLA!   Az ingatlan a klasszikus Győr- Révfalu városrészben található, központi helyen, az egyetem szomszédságában. A közelben minden, amire csak szüksége lehet a mindennapokban: bolt, buszmegálló, orvosi rendelő,  iskola, óvoda, bölcsőde, posta, Győr-Belvárosa, az Árkád üzletház is pár percen belül elérhető.    A lakás sajátosságai: 5 szintes társasház magasföldszintjén helyezkedik el. 103 m2-es lakótér elosztása: 3 nagyméretű szoba, fürdőszoba + wc,  nappali - konyha - étkező, fürdőszoba + wc, külön wc, közlekedő, előszoba.  Melegvízet gázbojler szolgáltatja, fűtését új gázkazán biztosítja, új radiátoros hőleadókkal. Az ingatlan teljes felújításon esett át:  A villany és vízvezetékeket átfűzték. Fa nyílászárókat átfestették, és üvegeit szigeteltre váltották. A parkettát felcsiszolták, a hideg burkolatokat kicserélték. Kialakítottak még egy fürdőszobát wc-vel. A ház homlokzatát és a tetőt pár éve felújították. A lépcsőház tiszta, rendezett. A közös udvar szépen karbantartott, parkosított.   A lakáshoz tartozik egy saját tároló, melyet az ár tartalmaz.  A parkolás az utcán megoldható.   A szépen felújított, újszerű lakás igény szerint irodának, bemutató teremnek, üzlethelyiségnek megfelelő, hogy álmait megvalósítsa.  A tehermentes ingatlant jelenleg albérlők lakják.   Hívjon mihamarabb, hogy körbevezethessem új otthonában! Fülöpné Máté Ildikó +36 30/993-2787   További szolgáltatásaink: díjmentes, bankfüggetlen hitelügyintézés értékbecslés energetikai tanúsítvány ügyvédi ügyintézés biztosítás

További adatok

  • Azonosító: 1663529
  • Épület szintjei: 5
  • Emelet: -
  • Méret: 103 m2
  • Szobák száma: 4 db
  • Félszobák száma: 0 db
  • Fűtés: Egyéb
  • Állapot: Felújított
  • Lift: -
  • Erkély/terasz: -

Elhelyezkedés