Ingatlanok összehasonlítása

Eladó 150 nm-es 4 szobás Ház Gödöllő

Gödöllő
134.900.000 Ft
899.333 Ft / m2

Leírás

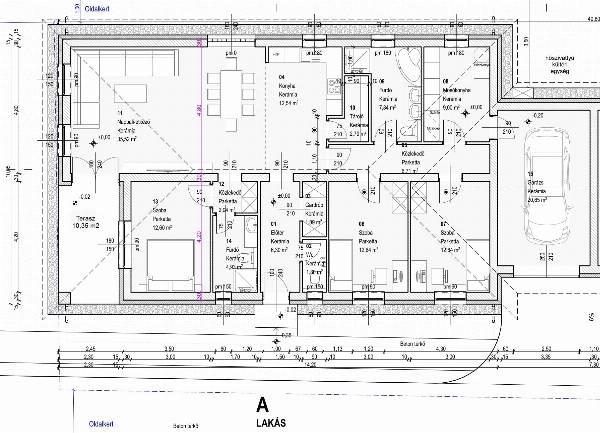
Gödöllő egyik legkeresettebb részén az Alvégen, megbízható kivitelező által épülő teljesen elszeparált, még egyedileg alakítható, variálható elosztású garázsösszeköttetéses ikerházfél eladó! Műszaki paraméterek: - 30-as Porotherm X-Therm tégla falazat + 15cm grafit homlokzati szigetelés, - betonfödém, - Bramac cserépfedés, - antracit színű alumínium fekvőeresz csatorna és lefolyó rendszer, - tetőtérben 20cm vastag üveggyapot szigetelés, - 3 réteg üvegezésű, 5 légkamrás műanyag nyílászárók, - 5 ponton záródó hőszigetelt ajtó, - hőszivattyú padlófűtéssel, fürdőkben kiegészítő törölközőszárítókkal, - nincs közös falrész, a két oldalt egy-egy garázs köti össze. Elosztás: - Előtér, nappali-konyha-étkező, kamra/tároló, 3 szoba, gardrób, közlekedő, két fürdő, vendégmosdó, mosókonyha + 10,35nm terasz és 20,65nm-es garázs. - Igény esetén még 4 vagy 5 szobás elosztással is kérhető! Telek: - Az ingatlan a telek utcafronti részén helyezkedik el, teljesen elszeparáltan, saját lekerített telekrésze 500nm. Környék: - Nagyon jó környék, csendes zsákutca. - Vonatállomás, buszmegálló, HÉV, iskola, posta, gyógyszertár stb. gyalog 15-20 perc alatt könnyen elérhető. Az ingatlant számos referenciával rendelkező, megbízható kivitelező építi! Burkolatok, belső ajtók a vevői igényei szerint még szabadon választhatók! Komoly érdeklődés esetén a referencia házak személyesen is megtekinthetők! Kérésre teljes műszaki tartalmat, alaprajzot szívesen küldünk! Irányár:134,9Mft Hivatkozási szám: 2518214. Megtekinthető telefonos időpont egyeztetés alapján: Sápi Balázs +36 20 772-2429 sapibalazs@godolloi.hu  GÖDÖLLŐ INGATLANKÖZPONT - www.godolloi.hu: Gödöllő és környéke legnagyobb ingatlan választéka /Gödöllő, Szada, Veresegyház, Kistarcsa, Kerepes, Erdőkertes, Fót, Dunakeszi/ eladó-kiadó családi ház, telek, laká

További adatok

  • Azonosító: 1663295
  • Épület szintjei: 1
  • Méret: 150 m2
  • Telek méret: 500 m2
  • Szobák száma: 4 db
  • Félszobák száma: 0 db
  • Fűtés: -
  • Állapot: Új építésű
  • Építési év: 2025
  • Ház szerkezete: Tégla
  • Erkély/terasz: -
  • Melléképület: -
  • Tetőtér: -

Elhelyezkedés