Ingatlanok összehasonlítása

Eladó 24 nm-es 1 szobás Lakás Budapest VII. Kerület

Budapest VII. Kerület - Nagykörúton belüli terület
43.900.000 Ft
1.829.167 Ft / m2

Leírás

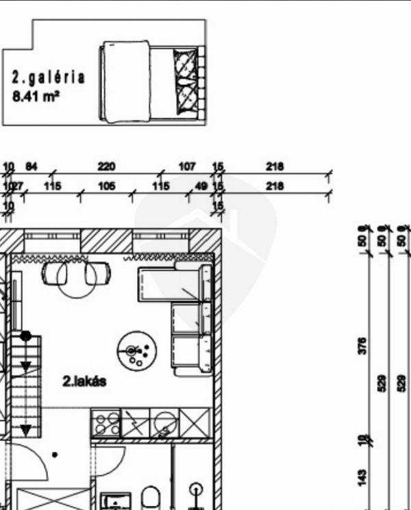
A VII. kerület, Dohány utcában kilátással a Rózsák terére eladó egy teljes körüen átalakított, első emeleti, 24 nm +8 nm galéria alapterületű lakás, 500 méterre található Állatorvosi egyetemen, tanuló külföldi diákok számára könnyen bérbeadható. -FRISSEN FELÚJÍTOTT -ÉVES 2,4 MILLIÓ BEVÉTEL A teljes körű felújítás során cserélve lettek az elektromos- és vízvezetékek, az összes szaniter, új biztonsági bejárati ajtó és műanyag ablakok kerültek beépítésre. Az inverteres hűtő-fűtő klíma minden időben kellemes hőmérsékletet biztosít a lakásban, míg a téli hidegben norvég elektromos panelek segítenek a tökéletes hőmérséklet elérésében. A ÚJ konyhabútor beépített konyhagépekkel (elektromos főzőlap, elektromos sütő, beépített hűtő, led világítás) áll a lakás mindekori használójának a rendelkezésére. Fürdőszoba és a mosdó igényes burkolatokkal és magas minőségű, szaniterekkel került kialakításra a mindennapi használat számára. A vételár tartalmazza továbbá a lakáshoz illő design függönyöket, karnisokat, mennyezeti valamint oldalfali lámpákat minden helyiségben. A vételárba beletartozik a részben gépesített konyhabútor, a teljeskörű berendezés további 2,5 MFt-ért megvásárolható.. A lakás lokációja kiváló, infrastruktúrája egyedülálló, ezért tökéletes a tömegközlekedési lehetőségek:10 perc gyalogtávolságra található a legtöbb éjszakai szórakozóhely, valamint pár percre található villamosok, trolik és buszok segítségével könnyen elérhető a város bármely pontja. A környéknek köszönhetően a gasztronómiai és szórakozási élmények teljes tárháza megtalálható a környéken. Éttermek, kávézók, üzletek sokasága várja az itt élőket. Befektetőknek kiváló lehetőség, mert könnyen és gyorsan kiadható. A vételár magában foglalja a gépesített konyhabútort és a fürdőszobai beépített bútorokat. Teljes berendezés további egyeztetés alapján lehetséges.

További adatok

  • Azonosító: 1663264
  • Épület szintjei: -
  • Emelet: -
  • Méret: 24 m2
  • Szobák száma: 1 db
  • Félszobák száma: 0 db
  • Fűtés:
  • Állapot:
  • Lift: -
  • Erkély/terasz: -

Elhelyezkedés