Ingatlanok összehasonlítása

SIÓFOK ARANYPARTON, ANNAK EGYIK LEGPATINÁSABB UTCÁJÁBAN, KÜLTÉRI MEDENCÉS TÁRSASHÁZBAN LAKÁS ELADÓ!

Siófok - Aranypart
94.900.000 Ft
1.825.000 Ft / m2

Leírás

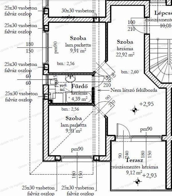
AZ UPDATE VIP INGATLANIRODA KÍNÁLATÁBÓL: SIÓFOK ARANYPARTON, ANNAK EGYIK LEGPATINÁSABB UTCÁJÁBAN, KÜLTÉRI MEDENCÉS TÁRSASHÁZBAN LAKÁS ELADÓ! -BALATON kb 150-200m Kiválóan alkalmas nyaralónak, befektetési célra (pl kiadás), vagy akár életvitelszerűre lakhatásra egyaránt! Azonnal költözhető! -1. emeleti lakás -Lakótér: 47.13m2 -Terasz: 9.12m2 -Nappali-étkező-konyha, fürdőszoba + wc, 2 db hálószoba, előtér, terasz -Fűtés: Gázcirkó -Hűtés: Klíma (hűtő-fűtő) -Szigetelt épület (10cm dryvit) -A vételár tartalmaz 1db autóbeállót. (Zárt, udvaribeálló, megközelítése elektromos kapun keresztül.) -Rendkívül jól hasznosítható ingatlan, pl kiadásra -Kiváló lokáció! -Szabadstrand: kb 150-200m -Petőfi sétány, Plázs, Strand: 350m -Belváros - Fő Tér - Víztorony, Sió plaza, További üzletek-szolgáltatások,  Közintézmények: kb 1000m Bővebb információért, megtekintés egyeztetésért, kérem keressen a megadott elérhetőségeimen! UPDATE VIP INGATLAN IRODA további szolgáltatásai: Energetikai tanúsítvány készítés, Érintésvédelem felülvizsgálat/szakvélemény, Díjmentes-bank semleges hitelügyintézés, Ügyvédi háttér, Közjegyző, Földhivatali ügyintézés, Építész, Lakberendező.

További adatok

  • Azonosító: 1663168
  • Épület szintjei: -
  • Emelet: -
  • Méret: 52 m2
  • Szobák száma: 3 db
  • Félszobák száma: 0 db
  • Fűtés: Gáz cirkó
  • Állapot:
  • Lift: -
  • Erkély/terasz: -

Elhelyezkedés