Ingatlanok összehasonlítása

Eladó 163 nm-es Ház Nyíregyháza

Nyíregyháza - Oros
139.000.000 Ft
852.761 Ft / m2

Leírás

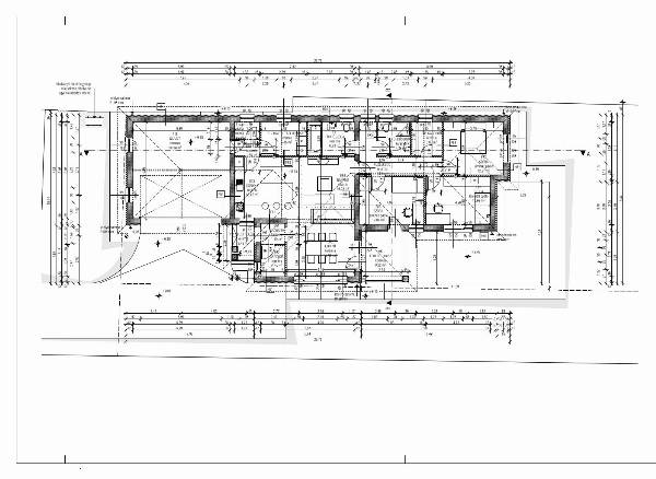
Új építésű, önálló családi ház Nyíregyháza–Oros városrészében – tágas, modern otthon kiváló elosztással és elhelyezkedéssel! Eladásra kínálunk egy önálló, új építésű, 163 m²-es családi házat Nyíregyháza egyik legkedveltebb, csendes és rendezett részén, Oroson, 720 m²-es telken. Az ingatlan tégla falazatú, szigetelt, cseréptetős, korszerű hőszivattyús fűtéssel, így energiatakarékos és környezetbarát megoldás. Kiemelkedő elosztás és funkcionalitás: A ház belső terei átgondoltan és praktikusan lettek megtervezve: -tágas, egybenyitott nappali–konyha–étkező központi tér, -3 nagy hálószoba (mindegyik 12 m² fölötti), -2 modern fürdőszoba, -2 gardrób, -háztartási helyiség, -kamra, -előszoba és fedett előtér, -valamint fedett terasz és hatalmas nyitott terasz a pihenéshez és kikapcsolódáshoz.   A ház a vevő igényeinek megfelelően kerül kialakításra! Lehetőség van a hideg- és melegburkolatok, beltéri ajtók és falszínek egyéni kiválasztására, így valóban személyre szabott otthon születhet.   Kiváló elhelyezkedés: A környék nyugodt, mégis rendkívül jól megközelíthető. Bolt, buszmegálló és egyéb szolgáltatások néhány perc sétára találhatók, így a mindennapi élet kényelmesen megoldható. Várható átadás: 2026 nyara. Otthonteremtési Start hitel igényelhető! Modern technológia, energiatakarékos megoldások, átgondolt terek és remek lokáció – minden adott egy kényelmes, hosszú távra szóló otthonhoz! Ne hagyja ki ezt a kivételes lehetőséget – vegye fel velünk a kapcsolatot még ma, és válassza ki álmai otthonát Oroson!

További adatok

  • Azonosító: 1663119
  • Épület szintjei: -
  • Méret: 163 m2
  • Telek méret: 720 m2
  • Szobák száma: 0 db
  • Félszobák száma: 0 db
  • Fűtés: -
  • Állapot: Új építésű
  • Építési év: -
  • Ház szerkezete: Tégla
  • Erkély/terasz: -
  • Melléképület: -
  • Tetőtér: -

Elhelyezkedés