Ingatlanok összehasonlítása

Eladó 181 nm-es 5 szobás Ház Göd

Göd
184.900.000 Ft
1.021.547 Ft / m2

Leírás

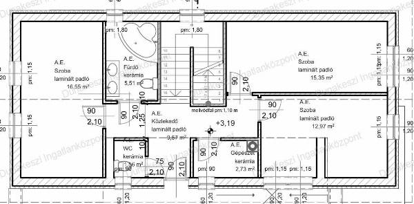
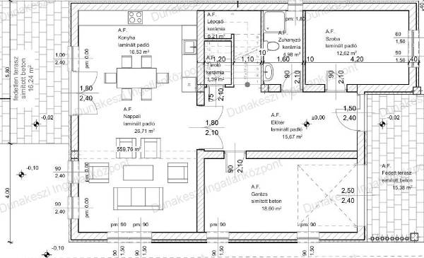
Újépítésű, GARÁZSOS családi ház eladó Gödön, a vasútállomás közelében.   Az ingatlan előnyei A HÁZ KORSZERŰ HŐSZIGETELÉSI MEGOLDÁSOKKAL ELLÁTVA, 3 RÉTEGŰ MŰANYAG NYÍLÁSZÁRÓKKAL KÉSZÜL, így nem csak kényelmes, hanem hosszú távon GAZDASÁGOSAN FENNTARTHATÓ otthon lesz! Modern megjelenésű, elegáns ház fehér-barna színvilággal - a stílus és igényesség tökéletes egyensúlya. Minőségi kivitelezés, modern formaterv. A vasútállomás közelében található – nagyon jól megközelíthető helyen!   Főbb jellemzők Alapterület: 181 m2 Telek méret: 560 m2 Szobák száma: 5 Helyiségek: Földszinten: amerikai konyhás nappali (43 nm), fürdőszoba, 1 hálószoba (12 m2), tároló, fedett terasz 15 m2 Emeleten: 3 hálószoba (15 m2,17 m2,13 m2), fürdőszoba, wc Garázsbeálló (18 m2) Épület: 2 szintes Szintenként klíma berendezés.     Elhelyezkedés Göd kertvárosi részén található- ideális választás a nyugodt mindennapokhoz. A környék infrastruktúrája jól kiépített: buszmegállók, iskola-óvoda elérhető pár perc alatt. Az ingatlan kulturált, aszfaltos utcában található.   Környezet, közlekedés Könnyű közlekedés - Budapest északi részén található Göd, így nagyvárosi munkába járás vagy városi szolgáltatások elérése egyszerű.   Amennyiben fontos Önnek a csendes környezet, de Budapest könnyű megközelíthetősége is, kérem keressen minket bizalommal!   TEKINTSE MEG IRODÁNK TOVÁBBI KÍNÁLATÁT LOGÓNKRA KATTINTVA.    

További adatok

  • Azonosító: 1663088
  • Épület szintjei: 2
  • Méret: 181 m2
  • Telek méret: 560 m2
  • Szobák száma: 5 db
  • Félszobák száma: 0 db
  • Fűtés: -
  • Állapot: -
  • Építési év: -
  • Ház szerkezete: Tégla
  • Erkély/terasz: -
  • Melléképület: -
  • Tetőtér: -

Elhelyezkedés