Ingatlanok összehasonlítása

Nappali + 2 szobás, erkélyes lakás

Győr - Szitásdomb
57.990.000 Ft
966.500 Ft / m2

Leírás

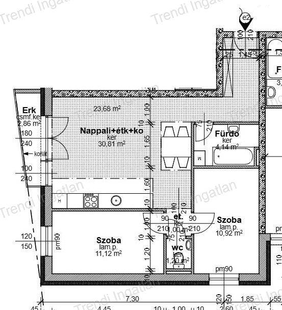
Győr-Belvárosától pár perces autóútra, Szitásdomb új kialakítású részén új építésű 29 lakásos társasházban nappali + 2 szobás lakás eladó. Az 1. emeleten található 59,20 nm-es ingatlanban amerikai konyhás nappali, 2 szoba, fürdőszoba, külön WC, közlekedő, előtér kerül kialakításra. A nappaliból 2,86 nm-es erkély nyílik.  Az ingatlan fűtéskész ára: 57.990.000 Ft. Kulcsrakész befejezés kérhető. Gépkocsibeálló ára: 1.700.000 Ft Lehetőség van tároló vásárlására is, ára: 1.500.000 Ft-tól. A társasház Szitásdomb új lakóparkjában épül. A földszinti lakások terasszal, az emeleti lakások erkéllyel/terasszal rendelkeznek. A társasház zárt udvarán felszíni parkolók kerülnek kialakításra. A társasház 30 cm-es falazóelemből, 20 cm-es homlokzati hőszigeteléssel épül. A műanyag, hőszigetelt nyílászárók 6 légkamrásak, 3 rétegű üvegezéssel rendelkeznek. Az ár tartalmazza a redőny előkészítését lefutókkal, az elektromos kiépítés felár ellenében kérhető. A társasház fűtését hőszivattyú biztosítja. Lakásonként egyedi hőmennyiségmérő, a fürdőszobában törölközőszárító radiátor kerül. Klímakiépítés igény esetén felár ellenében kérhető. A társasház átadásának tervezett időpontja: 2026 nyár Bővebb információkért keressen bizalommal! Hétköznap és hétvégén is várom hívását! A hirdetésben feltüntetett képek illusztrációk.

További adatok

  • Azonosító: 1662131
  • Épület szintjei: -
  • Emelet: -
  • Méret: 60 m2
  • Szobák száma: 3 db
  • Félszobák száma: 0 db
  • Fűtés:
  • Állapot: Új építésű
  • Lift: -
  • Erkély/terasz: -

Elhelyezkedés