Ingatlanok összehasonlítása

Nyíregyházán a belváros közelében 65,20 nm-es, Nappali + 2 szobás, erkélyes, teraszos lakás eladó!

Nyíregyháza
61.945.000 Ft
953.000 Ft / m2

Leírás

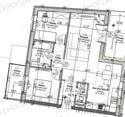
Nyíregyházán a belváros közelében 4 lakásos társasházban, ÚJ ÉPÍTÉSŰ, 2. emeleti 59,35 nm-es, Nappali - amerikai konyhás + 2 szobás, erkélyes (4,53 nm), teraszos (7,18 nm) lakás eladó!   Jelen ajánlat a C lakásra vonatkozik! Az ingatlan főbb jellemzői:: - POROTHERM 30 TÉGLA FALAZAT, 15 cm-es homlokzati szigeteléssek ellátva,  - a társasház Földszint + 2 emelet kialakítású, - fokozottan hő és hangszigetelt, műanyag nyílászárók, - Kelet-Nyugati fekvés, - Fűtése egyedi gázfűtés, kondenzációs kombi kazánnal, padlófűtéssel és a szobákban radiátor hőleadókkal, - A szobákban, nappaliban laminált padló,, a többi helyiségben kerámia burkolat, - Hekységei: Nappali - amerikai konyha, 2 szoba, fürdő,  WC külön helyiségben, előszoba, erkély, terasz   A lakáshoz önálló garázs + 10.000.000,- Ft, belső udvari beálló + 3.500.000,- Ft   Várható átadás: 2026. év vége   Díjmentes hitel, CSOK PLUSZ, Babaváró, Biztosítások ügyintézése! Amennyiben hirdetésem felkeltette az érdeklődését keressen bizalommal! Ügyfeleink számára minden szolgáltatásunk DÍJMENTES!   Tel:+36 30 579 6521 Lehoczki Mihály Ingatlanközvetítő

További adatok

  • Azonosító: 1661920
  • Épület szintjei: 1
  • Emelet: -
  • Méret: 65 m2
  • Szobák száma: 3 db
  • Félszobák száma: 0 db
  • Fűtés:
  • Állapot: Új építésű
  • Lift: -
  • Erkély/terasz: -

Elhelyezkedés