Ingatlanok összehasonlítása

Eladó 187 nm-es 5 szobás Ház Érd

Érd - Parkváros
139.900.000 Ft
748.128 Ft / m2

Leírás

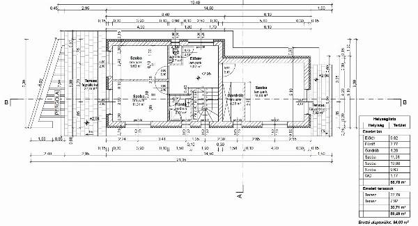
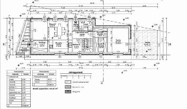
Érd Fenyves- parkvárosában eladó 3 szinten tervezett, aszfaltozott úton megközelíthető, 187 m2-es körbejárható, önálló , minőségi anyagokból készülő családi ház, összközműves 578 m2-es telken. Elosztás: Földszint: 77,02 m2: Fürdő 4,08 m2,Gardrób 3,36 m2, Gardrób 5,25 m2, Háztartási helység 3,45 m2, Konyha 8,19 m2, Lépcsőház-közl. 8,76 m2, Nappali 22,11 m2, Szélfogó 5,00 m2, Szoba 15,12 m2, WC 1,70 m2 Emelet: 58,78 m2:Előtér 9,82 m2, Fürdő 2,77 m2, Gardrób 4,20 m2, Szoba 11,31 m2, Szoba 19,88 m2, Szoba 9,63 m2, WC 1,17 m2 Pince: 51,57 m2: Gk. tároló 25,38 m2, Lépcsőház 6,84 m2, Fedett terasz 19,35 m2 Az ingatlan építése elkezdődött. Jelenleg az új tulajdonosnak még van lehetősége, a burkolatokat és a falak színét saját ízlésének megfelelően kiválasztani. A ház 30 cm-es hőszigetelt téglából 15 cm-es külső homlokzati szigeteléssel készül. A ház építtetője leinformálható töb mint 20 éve foglalkozik ingatlanok felépítésének kivitelezésével. Előre egyeztetett időpontban megtekinthető.

További adatok

  • Azonosító: 1661449
  • Épület szintjei: 2
  • Méret: 187 m2
  • Telek méret: 578 m2
  • Szobák száma: 5 db
  • Félszobák száma: 0 db
  • Fűtés: -
  • Állapot: Felújítandó
  • Építési év: 2026
  • Ház szerkezete: Tégla
  • Erkély/terasz: -
  • Melléképület: -
  • Tetőtér: -

Elhelyezkedés