Ingatlanok összehasonlítása

Eladó 142 nm-es 5 szobás Ház Dunakeszi

Dunakeszi
166.500.000 Ft
1.172.535 Ft / m2

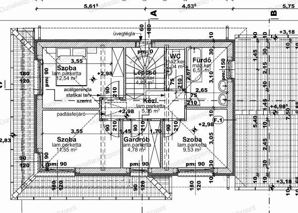
Leírás

Dunakeszi egyik csendes mellékutcájában KIVÁLÓ minőségben épülő NAGYON MEGBÍZHATÓ ÉPÍTŐ által épített ikerházi lakások eladók.  Új építésű ikerház prémium kivitelben – energiatakarékos, csendes, kényelmes! Eladó egy modern, új építésű ikerház, kiemelkedő műszaki tartalommal és korszerű megoldásokkal! A kivitelezés során a tartósságra, energiahatékonyságra és lakókomfortra egyaránt nagy hangsúlyt fektettek. Főbb jellemzők: Porotherm falazat, hő- és hangszigetelt szerkezet Háromrétegű üvegezésű nyílászárók Kültéri burkolatok: térkő, viacolor Prémium megjelenés: rozsdamentes korlát, színezett homlokzat, részben burkolólapos díszítés  Fűtés-hűtés: Levegő-víz hőszivattyú (Mitsubishi Zubadan vagy azzal egyenértékű) Padlófűtés minden lakótérben Hűtés: fan-coil rendszer Fürdőben törölközőszárítós radiátor  Burkolatok és szaniterek: 8.000 Ft/m² árkategóriájú padló- és falburkolatok Laminált parketta vagy padlószőnyeg a hálókban Zuhanyzó vagy kád (150.000 Ft-ig választható) Beépített WC tartály, modern szaniterek Elektromos rendszer: 1x32A általános és H-tarifás betáp Legrand kapcsolók, konnektorok Előkészítve: internet, TV, riasztó Motorizált, szigetelt garázskapu  Belső terek: Fehér alapszínre festett falak, választható színnel Utólag szerelhető dekorfóliás beltéri ajtók (br. 100.000 Ft/db árig) Garázs és terasz kész burkolattal  Telek, udvar: Rendezett udvar, alap tereprendezés Előregyártott acél kerítés lábazattal Kocsibeálló térkő burkolattal Ez az ingatlan ideális választás azoknak, akik új építésű, minőségi és energiahatékony otthonra vágynak. Minden előkészítve van ahhoz, hogy csak a bútorokat kelljen hozni! További műszaki dokumentáció és alaprajz elérhető kérésre.

További adatok

  • Azonosító: 1661243
  • Épület szintjei: -
  • Méret: 142 m2
  • Telek méret: 400 m2
  • Szobák száma: 5 db
  • Félszobák száma: 0 db
  • Fűtés: -
  • Állapot: -
  • Építési év: -
  • Ház szerkezete: -
  • Erkély/terasz: -
  • Melléképület: -
  • Tetőtér: -

Elhelyezkedés