Ingatlanok összehasonlítása

Eladó 140 nm-es 4 szobás Ház Érd

Érd Dombosváros
115.000.000 Ft
821.429 Ft / m2

Leírás

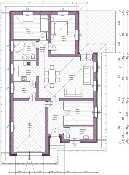
DOMBOSVÁROS SZÍVÉBEN, VARÁZSLATOS TELKEN ÉPÜLŐ, TÁGAS CSALÁDI HÁZ, HŐSZIVATTYÚS FŰTÉSSEL, TERASSZAL, GARÁZZSAL! Érden eladó egy 890 m2-es, telken épülő, ÚJ ÉPÍTÉSŰ, nettó 112 m2-es, 3 szoba + nappalis,akár 4 szobás is lehet, igénynek megfelelően! Az ingatlan ideális helyen épül, csend, nyugalom jellemzi a helyet! Fontos, hogy az ingatlanvásárlás hosszú távon is értékálló befektetés legyen! Kiváló adottságú telek előnyeit figyelembe véve alaposan átgondolt tervezés alapján épül az ingatlan benapozottsága optimális. A beépített anyagok minőségének és a korszerű technológiának köszönhetően az ingatlan energiatakarékos, gazdaságosan üzemeltethető. Rövid műszaki leírás: A ház vasalt, szigetelt beton sávalapra épül, 30-as Porotherm tégla tartófalakkal és 10-es Porotherm tégla, vakolt válaszfalakkal. A homlokzatra 15 cm-es dryvit, a lábazatra 10 cm-es xps, az aljzatra 10 cm-es lépésálló és a fa szerkezetű födémre 30 cm-es kőzetgyapot szigetelés kerül. A tető fedése Terran cseréppel. A fűtésről hőszivattyú gondoskodik, padlófűtéssel. A hideg és meleg burkolatok igény szerint választhatók 6.000 Ft / nm árig. Ajánlom mindazon gyerekes házaspároknak, pároknak, nyugdíjasoknak, akik egy igazán kiváló, jól megközelíthető, jó adottságokkal rendelkező, csendes, nyugodt helyen szeretnék élni a mindennapjaikat. Ha szeretne kiszabadulni a városi körforgásból, de mégsem akar végleg elszakadni tőle, akkor a legjobb választás ez a környék, ahol az ébredés után saját teraszán kortyolhatja a reggeli kávéját, szippanthatja magába a friss levegőt és hallgathatja a madarak csicsergését. Amennyiben az ajánlatom felkeltette érdeklődését, kérem keressen telefonon. Szép napot és sikeres vásárlást kívánok Önnek!

További adatok

  • Azonosító: 1660881
  • Épület szintjei: -
  • Méret: 140 m2
  • Telek méret: 890 m2
  • Szobák száma: 4 db
  • Félszobák száma: 0 db
  • Fűtés: -
  • Állapot: Új építésű
  • Építési év: 2025
  • Ház szerkezete: Tégla
  • Erkély/terasz: -
  • Melléképület: -
  • Tetőtér: -

Elhelyezkedés