Ingatlanok összehasonlítása

Eladó 87 nm-es 4 szobás Ház Pomáz

Pomáz Pomáz
139.000.000 Ft
1.597.701 Ft / m2

Leírás

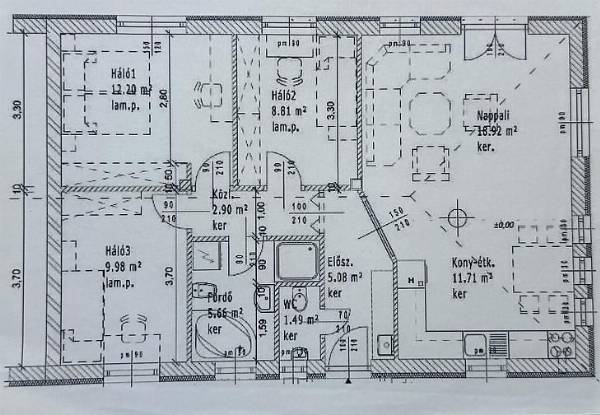
POMÁZON ELADÓ EGY IKERHÁZ-FÉL! A KÖRNYÉK: Pomázon, központi helyen, a H5-ös HÉV-től csak 12 perc sétára található. Könnyen megközelíthető rengeteg bevásárlási lehetőség, mint például a Lidl, vagy akár a SPAR szupermarket, melyek szintén 12 perc sétatávra helyezkednek el. A Mátyás Király Általános Iskola 15 perc, míg a Sashegyi Sándor Általános Iskola és Gimnázium 16 perc gyalog. A HÁZ JELLEMZŐI: -A ház hasznos alapterülete: 76,76 nm. -Plusz egy 19,43 nm-es fedett terasz. -Plusz egy 30 nm-es, fűtött garázs. -2013-ban épült, 30 cm vastagságú Porotherm téglából. -15 cm-es Dryvit szigetelést kapott. -A tető kerámia cseréppel fedett. -A nyílászárók 3 rétegűek, műanyagok, redőnnyel és szúnyoghálóval felszereltek. -A fűtésről egy kondenzációs gázkazán gondoskodik. -Az összes helyiségben padlófűtés került kialakításra. -A nappaliban megtalálható egy hűtő-fűtő klíma. -Kiépítésre került riasztó, valamint kamerarendszer is, 8 darab kamerával ellátva. FINANSZÍROZÁS: Banki finanszírozással is megvásárolható, melyben irodánk ingyenes tanácsadással áll rendelkezésükre! VEVŐINK RÉSZÉRE A KÖZVETÍTÉS DÍJTALAN! A hirdetésben szereplő adatok tájékoztató jellegűek!

További adatok

  • Azonosító: 1660869
  • Épület szintjei: 1
  • Méret: 87 m2
  • Telek méret: 390 m2
  • Szobák száma: 4 db
  • Félszobák száma: 0 db
  • Fűtés: Gáz konvektor
  • Állapot:
  • Építési év: 2013
  • Ház szerkezete: Tégla
  • Erkély/terasz: -
  • Melléképület: -
  • Tetőtér: -

Elhelyezkedés