Ingatlanok összehasonlítása

Eladó 125 nm-es 4+1 szobás Ház Kakucs

Kakucs
45.000.000 Ft
360.000 Ft / m2

Leírás

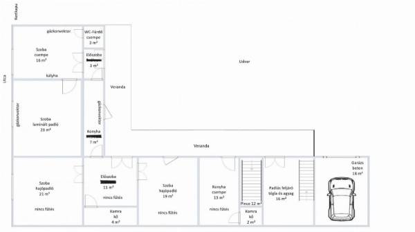
 Budapesttől az M5 autópályán 40km-re található,Kakucs központi részén eladásra kínálok egy 125 nm fellújítondó 4 szobás családi házat.Az eladó sorba került ház, az 50-es években épült.Utcafrontos beépítésű a telken befelé L alakban helyezkedik el.Polgári jellegű a külső része, és a belső elosztáson is fel fedezhető.A villanyhálózat 2006-ben teljes körűen fel lett újítva.Részben vályog és tégla építésű is.A ház elosztása alkalmas 2 önálló lakás kialakítására is.Az ingatlan összközműves, ipari, éjszaki áram is van.A telek 1475nm, gazdálkodásra, állattartásra is alkalmas.A ház része a garázs is de ezen kívül egy könnyűszerkezetes tároló is.Tehermentes, nagyon rövid időn belül birtokba vehető. Jelenleg a ház kiürítésé zajlik.Befektetésre is ajánlom.CSOK,hitel, felvehető! Ha felkeltette érdeklődését kérem hívjon. O62O4OO4O26  

További adatok

  • Azonosító: 1660551
  • Épület szintjei: -
  • Méret: 125 m2
  • Telek méret: 1500 m2
  • Szobák száma: 4 db
  • Félszobák száma: 1 db
  • Fűtés: Gáz cirkó
  • Állapot: -
  • Építési év: 1960
  • Ház szerkezete: Tégla
  • Erkély/terasz: -
  • Melléképület: -
  • Tetőtér: -

Elhelyezkedés