Ingatlanok összehasonlítása

Eladó 44 nm-es 2 szobás Lakás Budapest VIII. Kerület

Budapest VIII. Kerület - Corvin negyed
83.000.000 Ft
1.886.364 Ft / m2

Leírás

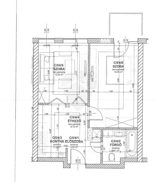
Eladóvá vált egy 44 m2 alapterületű, két szobás lakás a Corvin negyedben, az első emeleten. Ez a lakás 83.000.000 HUF-ért várja új tulajdonosait. Az újszerű állapotú ingatlan ideális választás lehet azok számára, akik befektetést keresnek. Teljes bútorzattal és gépesítve található a lakás. Az ingatlan kellemes, csendes és központi övezetben található, belső zöld udvarral. Befektetési lehetőségek terén is ígéretes, ugyanis a helyszínen még három lakás keresi új lakóját vagy befektetőjét. A lakást csomagban is megveheti, amihez egy parkolóhely és egy tároló is tartozik. A helyi szolgáltatások igen kedvezőek: a Pláza 3 perc sétával, míg a metró és villamosmegálló 5 perc séta távolságra helyezkedik el.

További adatok

  • Azonosító: 1660319
  • Épület szintjei: -
  • Emelet: -
  • Méret: 44 m2
  • Szobák száma: 2 db
  • Félszobák száma: 0 db
  • Fűtés: Házközponti egyedi méréssel
  • Állapot: Felújított
  • Lift: -
  • Erkély/terasz: -

Elhelyezkedés