Ingatlanok összehasonlítása

Eladó 137 nm-es 5 szobás Ház Gyál

Gyál
126.990.000 Ft
926.934 Ft / m2

Leírás

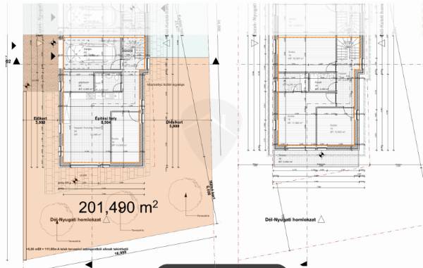
Gyál belterületi, jól megközelíthető részén kínálunk megvételre egy 137 m²-es, új építésű ikerházfelet, 201 m² saját telekrésszel. Az ingatlan kétszintes: Földszint – nappali + étkező, szoba, fürdő, garázs Emelet – 3 hálószoba, fürdő, 9 m²-es terasz -Hőszivattyús fűtés, padlófűtéssel minden helyiségben -Közvetlen átjárás a garázsból a házba -Remek elrendezés, csendes környék, kiváló infrastruktúra

További adatok

  • Azonosító: 1660232
  • Épület szintjei: -
  • Méret: 137 m2
  • Telek méret: 201 m2
  • Szobák száma: 5 db
  • Félszobák száma: 0 db
  • Fűtés: -
  • Állapot: Új építésű
  • Építési év: 2025
  • Ház szerkezete: Tégla
  • Erkély/terasz: -
  • Melléképület: -
  • Tetőtér: -

Elhelyezkedés