Ingatlanok összehasonlítása

Szeged Rókus városrészen ELADÓ egy TELJESKÖRŰEN frissen FELÚJÍTOTT, amerikai konyhás+3 hálószobás panellakás, Vértóra néző panorámával!

Szeged
64.900.000 Ft
1.081.667 Ft / m2

Leírás

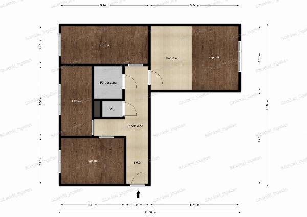
Szeged Rókus városrész egyik legkedveltebb részén kínálunk ELADÁSRA egy 60 m²-es, akadálymentesített, teljeskörűen FELÚJÍTOTT, amerikai konyhás, + 3 hálószobás panellakást, amely egy tízemeletes, 30 lakásos társasház HARMADIK emeletén helyezkedik el. Az ingatlan déli tájolásának köszönhetően egész nap világos, és a Vértóra néző panoráma az év minden szakában szemet gyönyörködtető, kivételes látványt nyújt. Általános információk Az 1990-es évek elején épült X. emeletes társasház a panelprogram keretein belül egy 10 v cm-es küldő homlokzatszigetelést, valamint modern, hőszigetelt bejárati ajtókat kapott. A lépcsőház akadálymentesített, rendezett, folyamatosan karbantartott, igényes, mindenre odafigyelő lakóközösséggel rendelkezik. A III. emeletre gyalogosan, és egy tágas lift segítségével juthatunk fel. A lakásba belépve egy praktikus előtér fogad minket, melyen keresztül az L-alakú közlekedőbe jutunk. Innen nyílnak a különböző helyiségek. Balra kettő hálószoba, fürdőszoba és a külön nyíló illemhelyiség helyezkedik el. Szemben a harmadik hálószobánk, jobbra pedig az amerika konyhás nappali nyílik. A déli tájolásnak köszönhetően természetes fényben úsznak a helyiségek, elrendezése praktikus, panorámája pedig kivételes látványt nyújt. Jelenleg TELJES KÖRŰ felújításon esik át a lakás, amely magában foglalja az új bejárati és beltéri ajtók cseréjét, a teljesen GÉPESÍTETT konyhabútort (beépített hűtő, sütő, főzőlap, mosogatógép, páraelszívó), a teljes villany- és vízhálózat cseréjét, valamint az új nyílászárókat, burkolatokat, és a festést.  Az ingatlanba új, dupla üvegezéssel ellátott műanyag ablakok és 10 ponton záródó biztonsági ajtó került beépítésre. Fűtése távfűtés, egyedi méréssel. Az ingatlanhoz egy közös, zárható tároló is tartozik. Közös költség 13.000.- Ft, mely magába foglalja a biztosítást, felújítás alapot, szemétszállítást, takarítást, és az egyéb fenntartási díjakat is.  Műszaki adatok Építés éve: 1990 Épület szintjei: 10 Emelet: 3 Fűtés: Távfűtés, egyedi méréssel Tájolás: Déli Nyílászárók: Műanyag, hőszigetelt ablakok, új bejárati és beltéri ajtók Villany és vízhálózat: Teljes körűen felújítva Burkolatok: Új, modern kialakítás mind a hideg és a melegburkolatoknál egyaránt Konyhabútor: Beépített gépekkel- hűtő, sütő, főzőlap, mosogatógép, páraelszívó Környék – minden karnyújtásnyira Az ingatlan elhelyezkedése kimondottan előnyös, hiszen egy nyugodt, zöldövezeti környezetben található, mégis pár percre minden fontos infrastruktúrától. A közelben találhatóak: Bevásárlási lehetőségek: Tesco, Lidl, Aldi, Penny Market, drogéria. Szolgáltatások: Gyógyszertár, fodrászat, étterem, pékség, kávézó. Szabadidős és sportolási lehetőségek: A közeli Vértó ideális hely sétára, futásra vagy piknikezésre. Kiváló közlekedés A lakás tömegközlekedéssel is könnyen megközelíthető, hiszen a közelben találhatóak: 5-ös troli megállója 78A, 90, 90F, 90H buszjáratok 2-es villamos vonala Az autóval közlekedők számára ingyenes parkolási lehetőség biztosított közvetlenül az épület előtt. Kiknek ajánlom? Ez az ingatlan kiváló választás fiatal pároknak, befektetőknek, egyetemistáknak, idősebbeknek és azoknak, akik egy élhető, világos és panorámás otthonra vágynak. Befektetők számára is ideális lehetőség, hiszen a külön nyíló szobák könnyen bérbe adhatóak. Az ingatlan per- és tehermentes, 1/1-es tulajdonban van, és október közepén költözhető. Amennyiben felkeltette az érdeklődését, keressen bizalommal és tekintse meg személyesen!

További adatok

  • Azonosító: 1660065
  • Épület szintjei: 10
  • Emelet: -
  • Méret: 60 m2
  • Szobák száma: 2 db
  • Félszobák száma: 2 db
  • Fűtés: Távfűtés egyedi méréssel
  • Állapot: Felújított
  • Lift: Van
  • Erkély/terasz: -

Elhelyezkedés