Ingatlanok összehasonlítása

Győrladaméron AZONNAL KÖLTÖZHETŐ, új építésű, kulcsrakész, nappali + 3 szobás ikerház, 2 gépkocsibeállóval eladó!

Győrladamér
79.000.000 Ft
774.510 Ft / m2

Leírás

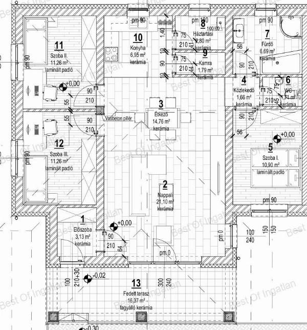
A "Best of Ingatlan Győr" Ingatlaniroda eladásra kínálja a Győrtől pár percre Győrladaméron, 913 m2-es telken épült ikerházat, azonnali KULCSRAKÉSZ állapotú átadással, 2 térköves gépkocsibeállóval. (A befejező munkálatok folyamatban vannak.) ÁRCSÖKKENÉS! NE MARADJON LE RÓLA!   Győrladaméron, új építésű 94 m2 + 16,37 m2 fedett teraszos, L1-es jelölésű ikerház 316 m2-es saját telekrésszel ELADÓ! Legyen az Öné ez a csodás ház azonnali átadással! LAKÁS ÁRÁN IKERHÁZA LEHET!    Győrladaméron található 913 m2 telek, melyre  2 db 1 lakásos teljesen egyforma lakóház került megépítésre.  L1 ikerház, a telek első részén helyezkedik el,  316 m2-es saját telekrésszel, mely a közös 166 m2-es murvás magánúton keresztül közelíthető meg. A két ház az egyik szoba és a fürdőszoba falánál épült össze, hanggátló téglából és szigeteléssel.   Az ingatlanok 30-as POROTHERM falazóelemekből, 20 cm-es homlokzati hőszigeteléssel, cserépfedéssel, 3 rétegű, hőszigetelt műanyag nyílászárókkal, redőnnyel és szúnyoghálóval kerültek kivitelezésre.  A ház fűtéséről és melegvíz ellátásáról kondenzációs gázkazán gondoskodik. Minden helyiségekben padlófűtés van, a fürdőszobában törölközőszárítós radiátor található. A megfelelő hőmérséklet elérését a nappaliban hűtő-fűtő klíma (5,5 KW) biztosítja.   A családi ház belső elosztása: a fedett teraszon keresztül jutunk az előszobába, majd a tágas amerikai konyha + étkezős nappaliba. A konyhához kamra is tartozik, mellette található a háztartási helyiség.  A közlekedőből érhető el a külön WC, a fürdőszoba zuhanyzóval, dupla kézmosóval és wc-vel. Mindhárom hálószoba élhető méretű, jól bútorozható.   A rendezett udvaron térkövezett gépkocsibeállók, kerítés, kültéri világítás kivitelezése folyamatban van.   Kulcsrakész vételár azonnali átadással: 79.000.000,-Ft, mely tartalmazza a telek árát is!   Lakás árán, családi háza lehet! Hozza a bőröndjét, és költözhet.... Hívjon most, nehogy lemaradjon róla! Fülöpné Máté Ildikó +36 30/993-2787   További szolgáltatásaink: - díjmentes, bankfüggetlen hitelügyintézés - értékbecslés - energetikai tanúsítvány - ügyvédi ügyintézés - biztosítás

További adatok

  • Azonosító: 1659947
  • Épület szintjei: 1
  • Méret: 102 m2
  • Telek méret: 316 m2
  • Szobák száma: 4 db
  • Félszobák száma: 0 db
  • Fűtés: -
  • Állapot: Újszerű
  • Építési év: 2025
  • Ház szerkezete: Tégla
  • Erkély/terasz: -
  • Melléképület: -
  • Tetőtér: -

Elhelyezkedés