Ingatlanok összehasonlítása

Nappali + 3 szobás ház

Győrság
59.900.000 Ft
658.242 Ft / m2

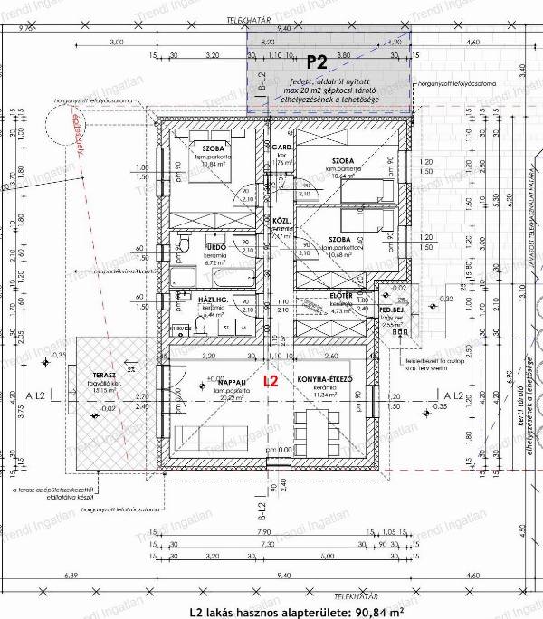
Leírás

Győrságon új építésű 90,84 nm-es nappali + 3 szobás ikerház 538 nm-es telekrészen eladó. A két ház önállóan megközelíthető, nincs közös fal. A remek elosztású házban amerikai konyhás nappali, 3 szoba, fürdőszoba, háztartási helyiség, előtér, gardrób, közlekedő található. A nappaliból 15,15 nm-es terasz nyílik. A ház 30-as falazóelemből, 15 cm-es homlokzati szigeteléssel, 3 rétegű műanyag nyílászárókkal kerül kivitelezésre. Az ingatlan fűtését és melegvíz ellátását hőszivattyú biztosítja padlófűtéssel. Felár ellenében kerti csap, klíma- és riasztó előkészítés, terasz, térkövezés kérhető. Fűtéskész átadás várható ideje: 2026 ősz Az ingatlan fűtéskész ára: 59.900.000 Ft. Kulcsrakész befejezés kérhető. Az ár tartalmazza a telek árát is. Bővebb információkért forduljon hozzám bizalommal. Hétköznap és hétvégén is várom hívását! Díjmentes, bankfüggetlen hitelügyintézéssel állunk rendelkezésére. A hirdetésben feltüntetett képek illusztrációk.

További adatok

  • Azonosító: 1659933
  • Épület szintjei: -
  • Méret: 91 m2
  • Telek méret: 538 m2
  • Szobák száma: 4 db
  • Félszobák száma: 0 db
  • Fűtés: -
  • Állapot: Új építésű
  • Építési év: -
  • Ház szerkezete: Tégla
  • Erkély/terasz: -
  • Melléképület: -
  • Tetőtér: -

Elhelyezkedés