Ingatlanok összehasonlítása

Eladó 170 nm-es 3 szobás Ház Dömsöd

Dömsöd
117.600.000 Ft
691.765 Ft / m2

Leírás

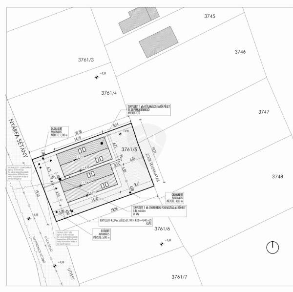
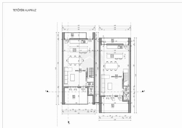
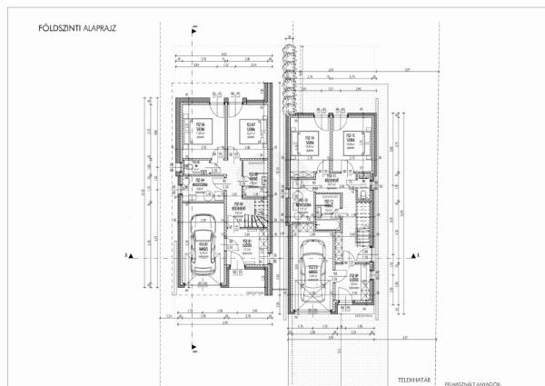
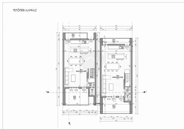
Exkluzív, Új Építésű Otthon Dömsöd Prémium Lakóövezetében Dömsöd egyik legkeresettebb, csendes és mégis dinamikusan fejlődő környékén, a Nyárfa sétányon kínáljuk eladásra ezt a modern, prémium kivitelezésű lakóingatlant. Az 570 m²-es telken elhelyezkedő exkluzív ikerház tökéletes választás azok számára, akik elegáns és kényelmes otthont keresnek természetközeli, nyugodt környezetben. Félkész vagy kulcsrakész állapotban elérhető! A ház jelenlegi állapotában is megvásárolható, de igény esetén kulcsrakész kivitelben is elérhető, amelynek ára 850.000 Ft/m² / ikerházrész. A mellékelt fotók az aktuális építési állapotot mutatják, míg a látványtervek a végleges, igényes kialakítást szemléltetik. Innovatív Építéstechnológia – Gyors és Tartós Megoldás A ház építéséhez nagyméretű keramzitbeton falelemeket használunk, amelyek kiváló hő- és hangszigetelő tulajdonságaikkal, valamint tartósságukkal emelik az ingatlan értékét. Az építési technológia akár 50%-kal gyorsabb kivitelezést tesz lehetővé a hagyományos módszerekhez képest, miközben biztosítja a kiemelkedő energiahatékonyságot és hosszú élettartamot. A keramzit egyik legnagyobb előnye, hogy: ✔ Könnyű, mégis rendkívül tartós ✔ Fagyálló és nem éghető ✔ Páraáteresztő, így a penész és gombásodás ellen is véd ✔ Kiváló hő- és hangszigetelő képességekkel rendelkezik ✔ Nem bocsát ki káros anyagokat, így allergiások számára is ideális Modern és Elegáns Életterek A letisztult, modern kialakítású otthon tágas, világos nappalival és amerikai konyhával rendelkezik, amely ideális helyszín a családi és baráti összejövetelek számára. A tetőteraszról páratlan kilátás nyílik a Dunára, amely különleges atmoszférát teremt a mindennapokban. A kertkapcsolatos elrendezés lehetőséget biztosít a szabadtéri pihenésre, a családias hangulatra, miközben a környék csendje és biztonsága garantálja a zavartalan kikapcsolódást. Prémium Felszereltség Parkolás – Saját egyállásos garázs Fűtés és hűtés – Levegő-víz hőszivattyús rendszer, padló- és mennyezetfűtés-hűtés Biztonság – Riasztórendszer, kamerás kaputelefon Nyílászárók – Prémium minőségű, hőszigetelt ablakok, elektromos redőnyök Szigetelés – 20 cm-es EPS hőszigetelés Elhelyezkedés és Környezet A Duna közelsége egyedülálló hangulatot kölcsönöz az ingatlannak, miközben a környék nyugalma és biztonsága tökéletes életkörnyezetet teremt családok számára. A környék infrastrukturális adottságai kiválóak: Könnyű megközelíthetőség autóval és tömegközlekedéssel egyaránt Iskolák, óvodák, üzletek és szolgáltatások néhány percen belül elérhetők Természetközeli életérzés a város nyüzsgése nélkül Azonnal Költözhető – Befektetésnek is Kiváló Lehetőség! Ez az ingatlan nem csupán egy otthon, hanem egy életstílus megtestesítője. A tehermentes ingatlan azonnal birtokba vehető, így nem kell hónapokat várnia álmai otthonára. Ha szeretné személyesen is megtekinteni ezt a különleges ajánlatot, vagy további kérdése van, keressen bizalommal! Segítünk, hogy megtalálja az ideális otthont vagy a tökéletes befektetési lehetőséget.

További adatok

  • Azonosító: 1659770
  • Épület szintjei: -
  • Méret: 170 m2
  • Telek méret: 570 m2
  • Szobák száma: 3 db
  • Félszobák száma: 0 db
  • Fűtés: -
  • Állapot: Új építésű
  • Építési év: 2025
  • Ház szerkezete: Tégla
  • Erkély/terasz: -
  • Melléképület: -
  • Tetőtér: -

Elhelyezkedés