Ingatlanok összehasonlítása

Eladó 95 nm-es 3 szobás Ház Kóka

Kóka
65.000.000 Ft
684.211 Ft / m2

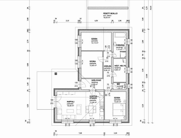
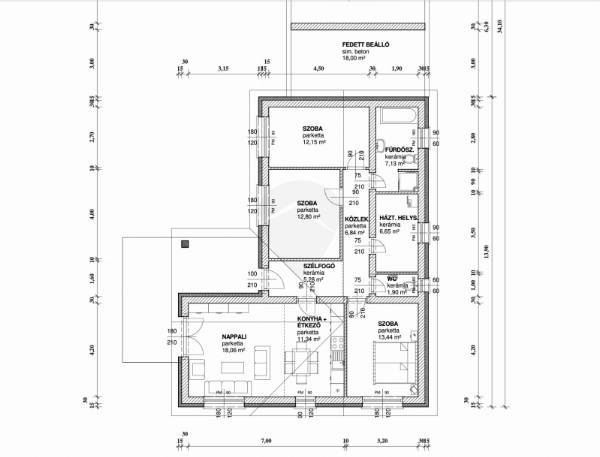
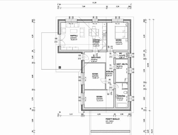
Leírás

Kókán a Nagykátai úton, egy újépítésű ikerház kerül értékesítésre, amely ingatlanonként nettó 95 m²-es hasznos lakóteret kínál, plusz fedett gépkocsi beálló jár az ingatlanhoz. Jól átgondolt, világos, tágas terek jellemzik, 3 hálószoba + amerikai konyhás nappali, WC, fürdőszoba, háztartási helyiség található az ingatlanban. Ikerházak fedett gépkocsi beállókon keresztül csatlakoznak egymáshoz! Igény esetén, plusz költség fejében garázs kialakítása is lehetséges. CSOK Plusz támogatás, Otthon Start igényelhető! Építési és műszaki jellemzők: 30-as tégla falazat, 10 cm-es Ytong belső falazat. Fa födém. Antracit színű betoncserép fedés. Homlokzat: 10 cm Grafitos EPS szigetelés. Talajnedvesség szigetekés: 1 rtg GV4 Padló: 10 cm lépésálló szigetelés. Födém: fa gerendák gombaölő szerrel kezelve, 25 cm ásványgyapot szigeteléssel. Nyílászárók: háromrétegű üvegezéssel ellátott thermo nyílászárók A fűtési rendszer hőszivattyús, padlófűtéssel kombinálva biztosítja a meleget és a melegvizet. Utcafronti kerítés: színezett zsalukő pillér + vas kétszárnyú kapu fa lécezéssel Választható műszaki tartalom (meghatározott keretösszegen belül): Hidegburkolat: 3000 Ft/m²-ig. Melegburkolat: 3000 Ft/m²-ig. Csaptelepek: 15.000 Ft/db Kád vagy zuhany: 40.000 Ft Mosdó: 40.000 Ft/db WC: 25.000 Ft/db Elektromos rendszer: Konnektorok: Szobák: 3 db Nappali: 4 db + internet és kábel-TV kiállás Konyha: 6 db Világítás: helyiségenként 1 pont Kábeltévé: előkészítés Riasztó: előkészítés Kapumozgató elektronika: előkészítés Extra opciók: Magasabb kategóriás anyagok választása költségkülönbözet finanszírozása mellett. Riasztó- és kapumozgató rendszer előkészítése. Most érdemes vásárolni, mert a piacon az ingatlan árak tekintetében még mindig emelkedés várható! Hívj még ma!

További adatok

  • Azonosító: 1659681
  • Épület szintjei: -
  • Méret: 95 m2
  • Telek méret: 1022 m2
  • Szobák száma: 3 db
  • Félszobák száma: 0 db
  • Fűtés: -
  • Állapot: Új építésű
  • Építési év: 2025
  • Ház szerkezete: Tégla
  • Erkély/terasz: -
  • Melléképület: -
  • Tetőtér: -

Elhelyezkedés