Ingatlanok összehasonlítása

Eladó 93 nm-es 4 szobás Ház Tápióság

Tápióság
57.999.000 Ft
623.645 Ft / m2

Leírás

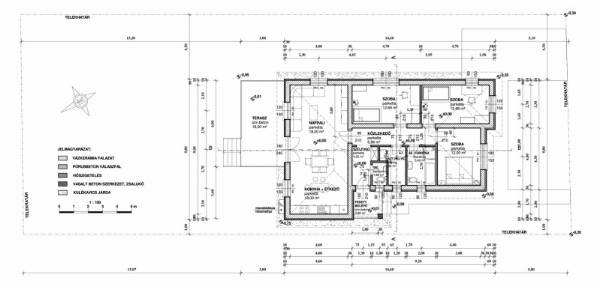
Tápióság központi részén, a Kölcsey utcában kínálunk megvételre három darab, új építésű, földszintes családi házat, amelyek egymás mellett, külön-külön 927 m²-es telkeken valósulnak meg. Mindhárom ingatlan teljesen önálló, 1/1 tulajdonú ház és saját telek formájában kerül kialakításra. Főbb adatok: - hasznos alapterület: ~93 m² - elrendezés: amerikai konyhás nappali + 2 hálószoba + fürdő + háztartási helyiség + terasz - falazat: 30 cm nútféderes tégla + 15 cm EPS homlokzati hőszigetelés - alap: vasalt beton - födém: fa gerendás, gombaölő szerrel kezelt - tető: fa tetőszerkezet, antracit betoncserép - nyílászárók: 3 rétegű üvegezésű műanyag ablakok, fehér műanyag párkánnyal - bejárati ajtó: műanyag thermo, biztonsági zárral Gépészet: - fűtés és melegvíz: monoblokk levegő–víz hőszivattyú, padlófűtéssel - elektromos hálózat: riasztó és kapumozgató előkészítés - csatorna, vízóra, villanyóra: saját mérővel kiépítve Burkolatok és belső kialakítás: - hidegburkolat: 3.000 Ft/m²-ig - melegburkolat: 3.000 Ft/m²-ig - beltéri ajtók: 30.000 Ft/db-ig - szaniterek: mosdó 20.000 Ft/db-ig, WC 20.000 Ft/db-ig, kád/zuhany 40.000 Ft/db-ig - festés: fehér színben, két rétegben Extrák: - mindhárom ház külön helyrajzi számon - tágas, 927 m²-es saját kert - terasz (burkolata egyedi egyeztetés szerint) - parkolási lehetőség a telken belül Finanszírozás: Az ingatlanok megfelelnek a CSOK Plusz és az Otthon Start és Falusi CSOK feltételeinek, így akár kedvezményes állami támogatással és kamattámogatott hitellel is megvásárolhatók. *projekt ingatlanok, szerződéskötés után kezdődik a megépítésük, 20% önrész szükséges

További adatok

  • Azonosító: 1659676
  • Épület szintjei: -
  • Méret: 93 m2
  • Telek méret: 927 m2
  • Szobák száma: 4 db
  • Félszobák száma: 0 db
  • Fűtés: -
  • Állapot: Új építésű
  • Építési év: 2025
  • Ház szerkezete: Tégla
  • Erkély/terasz: -
  • Melléképület: -
  • Tetőtér: -

Elhelyezkedés