Ingatlanok összehasonlítása

Eladó 93 nm-es 3 szobás Ház Hort

Hort
55.000.000 Ft
591.398 Ft / m2

Leírás

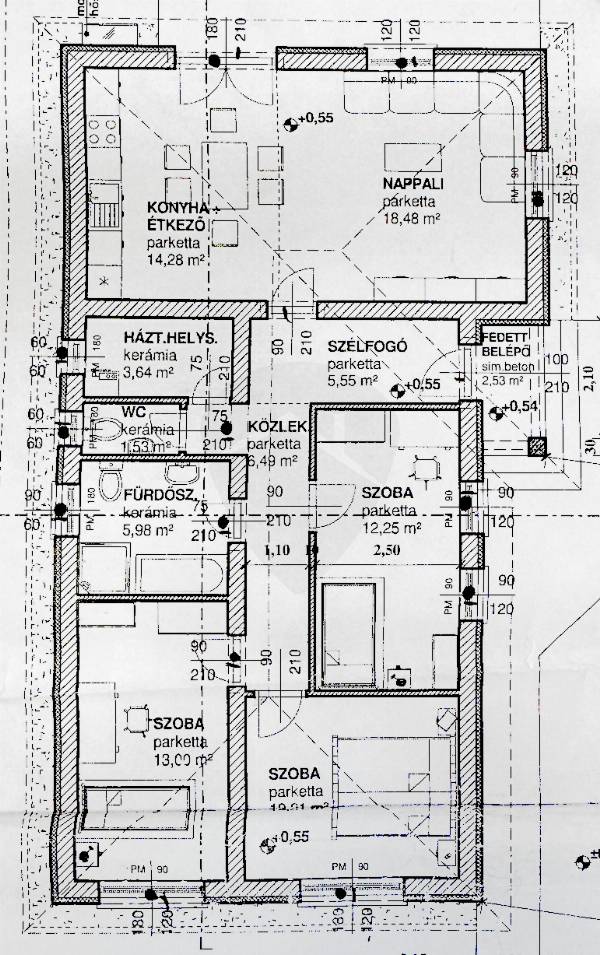
Eladásra kínálunk Horton, 1400 nm-es telken elhelyezkedő új építésű ingatlant. A megvalósuló családi ház 93 nm lakóterületű, mely amerikai konyhás nappali, 3 szoba, WC, fürdőszoba, háztartási helyiségből áll. Az ingatlan 30-as nútféderes tégla falazóelemből épül, fa födémmel. A tető antracit színű betoncserép héjazatot kap. A homlokzat 15 cm EPS, a padló 10 cm Austrotherm AT-N100-as, míg a vízszintes födém 25 cm ásványgyapot hőszigetelést kap. Épület nyílászárók: fehér műanyag, háromrétegű hőszigetelt üvegezéssel készülnek. Belső nyílászárók: furnérozott ajtók, igény szerint üvegezéssel. A fűtésről monoblokkos hőszivattyús rendszer gondoskodik, padlófűtéssel. A műszaki tartalom az alábbi kereteken belül szabadon választható: Hidegburkolat: 3.000 Ft/m²-ig Melegburkolat: 3.000 Ft/m²-ig Csaptelepek: 15.000 Ft/db Kád vagy zuhany: 40.000 Ft/db Beltéri ajtók: 35.000 Ft/db Elektromos rendszer kiépítése: Szobák: 3 konnektor/helyiség Nappali: 4 konnektor + internet- és kábeltévé előkészítés Konyha: 6 konnektor Világítás: helyiségenként 1 kiállás Kábeltévé: előkészítve A megadott költségkeret feletti műszaki tartalom is választható, a különbözet finanszírozásával. Előkészítésre kerül a riasztórendszer és a kapunyitó elektronika is. Igény esetén komplett tervdokumentációt és részletes műszaki leírást biztosítunk. Várható átadás: 2026 első negyedév Ingyenes hiteltanácsadás és CSOK Plusz, Otthon Start ügyintézés! Bankfüggetlen hitelcentrumunk az összes hazai bank és hitelintézet ajánlatát versenyezteti az Ön érdekében — díjmentesen. - Egyedi, bankfiókban nem elérhető kamat- és díjkedvezmények - Hitelképesség előminősítés - Idő-, energia- és pénzmegtakarítás - Teljes körű ügyintézés

További adatok

  • Azonosító: 1659661
  • Épület szintjei: -
  • Méret: 93 m2
  • Telek méret: 1400 m2
  • Szobák száma: 3 db
  • Félszobák száma: 0 db
  • Fűtés: -
  • Állapot: Új építésű
  • Építési év: 2025
  • Ház szerkezete: Tégla
  • Erkély/terasz: -
  • Melléképület: -
  • Tetőtér: -

Elhelyezkedés