Ingatlanok összehasonlítása

Eladó 93 nm-es 4 szobás Ház Kóka

Kóka
58.900.000 Ft
633.333 Ft / m2

Leírás

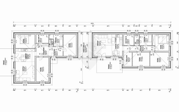
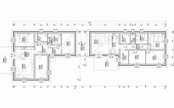
Kókán eladó 4db újépítésű ikerház külön kerített 530 m2 telkeken az Újvilág utcában! A házakat fedett gépkocsibeállóval kötik össze, így nincs közös fal. Az utcafronti házak ára 61.9m, a hátsó 58.9m Ft. -Telek mérete: 530 m² -Nettó hasznos alapterület: 97 m² -Földszintes ikerfél Kivitelező és referencia: A kivitelező több azonos terv alapján készült ingatlant valósított meg Sülysápon és Kókán Elérhető támogatások: -CSOK Plusz -Otthon Start Szerkezet és szigetelés: -Falazat: 30 cm nútféderes tégla -Födém: fafödém -Tetőfedés: antracit színű betoncserép -Homlokzat: 15 cm EPS hőszigetelés -Padló: 10 cm Austrotherm AT-N100 szigetelés -Vízszintes födém: 25 cm ásványgyapot szigetelés Nyílászárók: -Hat légkamrás, háromrétegű üvegezéssel szerelt ablakok Fűtés: -Monoblokkos hőszivattyús rendszer -Padlófűtés Alap műszaki tartalom (választható keretösszegekig): -Hidegburkolat: 3.000 Ft/m² -Melegburkolat: 3.000 Ft/m² -Csaptelepek: 15.000 Ft/db -Kád vagy zuhanyzó: 40.000 Ft -Beltéri ajtók: 35.000 Ft/db Elektromos kiépítés: -Szobánként 3 konnektor -Nappaliban 4 konnektor + internet és kábel TV kiállás -Konyhában 6 konnektor -Világítás helyiségenként 1 pont -Kábeltévé előkészítés További lehetőségek: -Magasabb kategóriájú műszaki tartalom is választható a különbözet finanszírozásával -Riasztórendszer előkészítés -Kapumozgató elektronika előkészítés Igény esetén komplett tervdokumentáció és részletes műszaki leírás biztosított Átadás: 2026. II. negyedév Teljes körű ingyenes tanácsadás, hitelügyintézés Intor Ingatlan

További adatok

  • Azonosító: 1659656
  • Épület szintjei: -
  • Méret: 93 m2
  • Telek méret: 750 m2
  • Szobák száma: 4 db
  • Félszobák száma: 0 db
  • Fűtés: -
  • Állapot: Új építésű
  • Építési év: 2025
  • Ház szerkezete: Tégla
  • Erkély/terasz: -
  • Melléképület: -
  • Tetőtér: -

Elhelyezkedés