Ingatlanok összehasonlítása

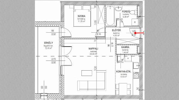
Győr-Szitásdomb II. eladó egy amerikai konyhás nappali + hálószobás + nagy erkélyes ÚJ ÉPÍTÉSŰ lakás.

Győr - Szitásdomb
61.790.000 Ft
1.103.393 Ft / m2

Leírás

Vámosszabadi-Szitásdomb II. Modern-fiatalos környezetben - szép épületek között épül fel ez az impozáns 35 lakásos társasház.  Az épület kialakítása a kortárs építészet szellemében egyszerű, letisztult formavilágú.   Egyedi megjelenés - modern dizájn - energiatakarékos fenntartás.   Várható átadás: 2026. III. negyedéve. A kivitelezés megkezdődött.   A szóban forgó ingatlan az 1. emeleten lévő 6. számú lakás.  Nettó 55,59 nm + 12,4 nm-es erkély. Amerikai konyhás nappali + 1 hálószoba + erkély.   Korlátozott számban az adott emeleten lévő tárolót /1,58nm-2,45nm = 1,58MFt - 2,45MFt/ és az udvaron belüli kocsibeállót lehet vásárolni.   Az U alakú épületben 3 szinten lettek a lakások elhelyezve. A külső- és teherhordó  falszerkezetek: POROTHERM 30 N+F falazóelemből, a lakáselválasztó falazat: LEIEERTHERM 25/30 AKU hanggátló téglából, a válaszfalak: POROTHERM 10 N+F falazóelemből, 10 cm vastagságban készülnek. A homlokzati hőszigetelés : 15 cm AUSTROTHERM AT-H80 lesz. A homlokzati nyílászárók: VEKA 76AD kívül-belül fehér szerkezetek, toktoldókkal, melyek hőszigeteltek. /5légkamrás-3rétegű üvegezéssel/ A hőenergia előállítása központilag, levegő-víz hőszivattyú teleppel lesz megoldva, melyek nyáron hűtést is biztosítanak. A hőleadás padló- és mennyezetfűtéssel, lakások egyedi hőmennyiségmérővel, szobatermosztáttal, fürdőszobában csővázas radiátorral.   Az árak emeletszintű fűtéskész árat jelentenek. Telek adásvételi és Vállalkozói kivitelezési szerződéssel, készültségnek megfelelő fizetéssel lehet szerződni. Kulcsrakész kivitelezés külön megállapodás alapján lehetséges. Erre a bank külön biztosít összeget.   Most még választhat. Nézzük meg együtt ezt a ragyogó ajánlatot. Hívjon, akár hétvégén is.   Irodánkban bankfüggetlen hiteltanácsadással és ügyintézéssel segítjük álmai megvalósításában. Energetikai és ügyvédi háttér.      

További adatok

  • Azonosító: 1659539
  • Épület szintjei: 2
  • Emelet: -
  • Méret: 56 m2
  • Szobák száma: 2 db
  • Félszobák száma: 0 db
  • Fűtés: Házközponti egyedi méréssel
  • Állapot: Új építésű
  • Lift: -
  • Erkély/terasz: -

Elhelyezkedés