Ingatlanok összehasonlítása

A ZOMBIK NEM TUDNAK ÚSZNI, VEGYÉL LAKÁST CSEPELEN !!!

Budapest XXI. Kerület - Csepel-Csillagtelep
77.550.000 Ft
994.231 Ft / m2

Leírás

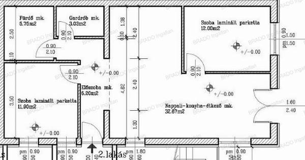
A ZOMBIK NEM TUDNAK ÚSZNI, VEGYÉL LAKÁST CSEPELEN !!!   SWEET NOVEMBER AKCIÓ !!! EGÉSZ NOVEMBERBEN MINDEN LAKÁS 1,000,000.-Ft/nm ÁRON !!!   Eladásra kínálom ezeket a teljes körűen, igényesen, esztétikailag és műszakilag is magas színvonalon felújított lakásokat Csepelen, a Csillag-telepen! LAKÁSOKRÓL: - mindegyik lakás 2 hálószobával, előszobával, amerikai konyhás nappalival, étkezővel és igényesen kialakított, tusolóval megépített fürdőszoba/WC-vel rendelkezik. Hűtés, fűtés és meleg víz ellátás – okos telefonról is vezérelhető - H-tarifáról üzemel. Riasztó és elektromos redőny csatlakozás kiépítve. A lakások újra tervezve, újjá építve. Új külső és belső nyílászárók. Mindegyik lakáshoz tartozik egy 5m2-es, zárható saját tároló és belső udvarban kialakított autóbeálló, melyek együttes ára 4 millió forint és kötelezően megvásárlandó. 1.lakás: Fsz – 63.77m2 = 63,770,000.-Ft / https://ingatlan.com/35038742 2.lakás: Fsz – 71.55m2 + 12m2 terasz (6m2) = 77,550,000.-Ft (A hirdetésben szereplő lakás) 3.lakás: Emelet – 72m2 = 72,000,000.-Ft / https://ingatlan.com/35038785 4.lakás: Emelet – Bruttó 64.86m2 (nettó: 62.76m2) = 62,760,000.-Ft / https://ingatlan.com/35038804 Az ingatlan kiváló, igényes anyagokból lett felújítva, 15cm-es homlokzati szigeteléssel, új színezéssel és új tetőszerkezet, 35cm-es kőzetgyapot szigeteléssel. A mai kor elvárásainak megfelelő, megújuló energiaforrás miatt alacsony rezsi költség. Csendes, kiváló lokáció, szinte minden kiszolgáló egység a közelben. Kiváló tömegközlekedés. (HÉV, Buszok) Elosztását tekintve tökéletes választás befektetésnek, vagy saját otthonnak egyaránt. Az ingatlan rugalmasan megtekinthető! Ha bármely kérdés felmerül az ingatlannal kapcsolatban, kérem, keressen elérhetőségeim egyikén! CSOK+ ra és a 3%-os Otthon Start hitelre egyaránt alkalmas! IRODÁNK INGYENES HITEL ÜGYINTÉZÉSSEL, TANÁCSADÁSSAL ÉS SZÁMOS BANK AJÁNLÁSÁVAL VÁRJA ÜGYFELEIT!  

További adatok

  • Azonosító: 1659517
  • Épület szintjei: 1
  • Emelet: -
  • Méret: 78 m2
  • Szobák száma: 3 db
  • Félszobák száma: 0 db
  • Fűtés: Egyéb
  • Állapot: Felújított
  • Lift: -
  • Erkély/terasz: -

Elhelyezkedés