Ingatlanok összehasonlítása

Eladó 80 nm-es 4 szobás Ház Tárnok

Tárnok
89.900.000 Ft
1.123.750 Ft / m2

Leírás

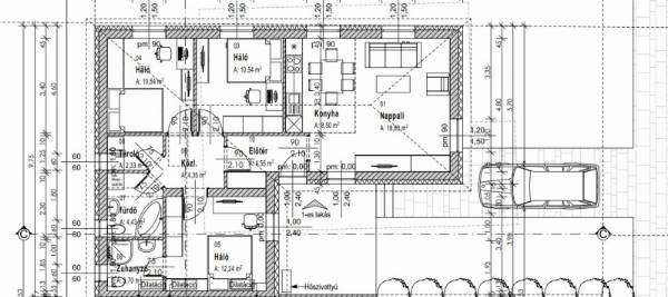
Kedves Ingatlankereső! Ha Tárnokon szeretne élni, és természetközeli nyugalomra vágyik, ez a vadonatúj, prémium minőségű otthon tökéletes választás! Ez a ház nem csupán egy ingatlan – ez egy életforma. A prémium kivitelezés, a természet közelsége és a modern technológia találkozása. A fejlesztő kiemelten kezeli a projektet! A mai kor követelményeinek maximálisan eleget téve építik meg az ingatlanokat. TÖKÉLETES VÁLASZTÁS A NAGYVÁROSOK ZAJÁTÓL TÁVOLI, ENERGIAHATÉKONY ÁLOMOTTHONT KERESŐK SZÁMÁRA! Szeretné meglepni szeretteit vagy biztonságban tudni a pénzét? Akkor ha ön is így gondolja ajánlanám ezt az ingatlant!! JÖJJENEK, NÉZZENEK KÖRÜL, HOGYAN IS ALAKÍTANÁK KI AZ ÖNÖK IGÉNYEI SZERINT SZÉP OTTHONNÁ!! Kérem hívjon, találkozzunk a helyszínen, hogy körbesétálhassunk a nyugodt , szép környezetben megépülő ingatlant, alakítsuk ki együtt az Ön és kedves családja szép új otthonát :) Az energiahatékonyság jegyében HŐSZIVATTYÚ rendszert alkalmaztunk, mely nagyon ENERGIATAKARÉKOS FELHASZNÁLÁST tesz lehetővé. Rövid műszaki ismertető: -vasbeton sávalap -30 cm vastag Porotherm teherhordó falak -10cm vastag Porotherm belső válaszfalak -zárófödém könnyű- szerkezet -homlokzati szigetelés 15cm vastag Dryvit rendszerű hőszigetelés -nyílászárók 3 rétegű 6 légkamrás műanyag szerkezetű nyílászárók, -fűtésrendszer hőszivattyúval,padlófűtéssel A hírdetésben megjelent külső látványtervek az engedélyezett ház tervei. Azaz a leendő végleges formát tükrözik. A házat ajánljuk családosoknak, hiszen itt minden az Állam adta kedvezményt, lehetőséget kihasználhatnak, legyen az Babaváró, CSOK támogatás és hitel is! Miért ne venné igénybe az Állam adta támogatásokat, lehetőségeket? Döntsön okosan, használja ki amíg lehet! Az ingatlanoknak mérete és ára van, az otthon igazi értéke viszont felbecsülhetetlen! Mi ezért - az értékbecsléstől a birtokbaadásig - végigkísérünk az ingatlan adásvétel folyamatán, hogy anyagi, jogi és érzelmi biztonságban legyél! Szívügyünk az otthonod! Az igény szerinti befejezésnek köszönhetően a hideg-meleg burkolatok kiválaszthatók a műszaki tartalomban rögzített árak szerint. Nekem ebben az ingatlanban az elhelyezkedése mellett, a formálhatósága és a benne rejlő rengeteg lehetőség tetszik a legjobban. Ha Ön is így látja, hívjon, nézze meg, legyen az új tulajdonosa mielőbb! Nem fogja megbánni! Szép napot sikeres vásárlást kívánok! Köszönöm hogy időt szánt a hirdetésemre!

További adatok

  • Azonosító: 1659420
  • Épület szintjei: -
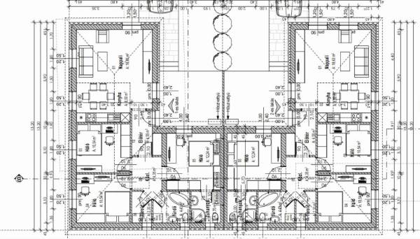
  • Méret: 80 m2
  • Telek méret: 300 m2
  • Szobák száma: 4 db
  • Félszobák száma: 0 db
  • Fűtés: -
  • Állapot: Új építésű
  • Építési év: 2026
  • Ház szerkezete: Tégla
  • Erkély/terasz: -
  • Melléképület: -
  • Tetőtér: -

Elhelyezkedés