Ingatlanok összehasonlítása

Azonnal költözhető nappali + 2 szobás lakás

Győr - Szitásdomb
69.900.000 Ft
1.145.902 Ft / m2

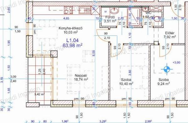
Leírás

Azonnal költözhető új építésű, erkélyes, nappali + 2 szobás lakás eladó! Győr-Belvárosától pár perces autóútra, Szitásdomb új kialakítású részén épült új építésű társasház 1. emeletén 61,39 nm-es nappali + 2 szobás lakás eladó. Az ingatlanban tágas, amerikai konyhás nappali, 2 szoba, fürdőszoba, WC, közlekedő található. A nappaliból 5,43 nm-es erkély nyílik. A társasház 30 cm-es falazóelemből, 15 cm-es homlokzati hőszigeteléssel épül. A műanyag nyílászárók 3 rétegű üvegezéssel rendelkeznek. A lakás fűtését és melegvíz ellátását egyedi méréssel, házközponti kondenzációs gázkazán biztosítja. Az ingatlan ára: 69.900.000 Ft.  A lakáshoz térkövezett parkoló vásárolható, ára: 1.500.000 Ft. Bővebb információkért keressen bizalommal! Díjmentes, bankfüggetlen hitelügyintézéssel állunk rendelkezésére.

További adatok

  • Azonosító: 1659246
  • Épület szintjei: -
  • Emelet: -
  • Méret: 61 m2
  • Szobák száma: 3 db
  • Félszobák száma: 0 db
  • Fűtés: Házközponti egyedi méréssel
  • Állapot: Új építésű
  • Lift: -
  • Erkély/terasz: -

Elhelyezkedés