Ingatlanok összehasonlítása

Hirdetünk ön helyett!

Cegléd - Hívja a tulajdonost!
59.000.000 Ft
842.857 Ft / m2

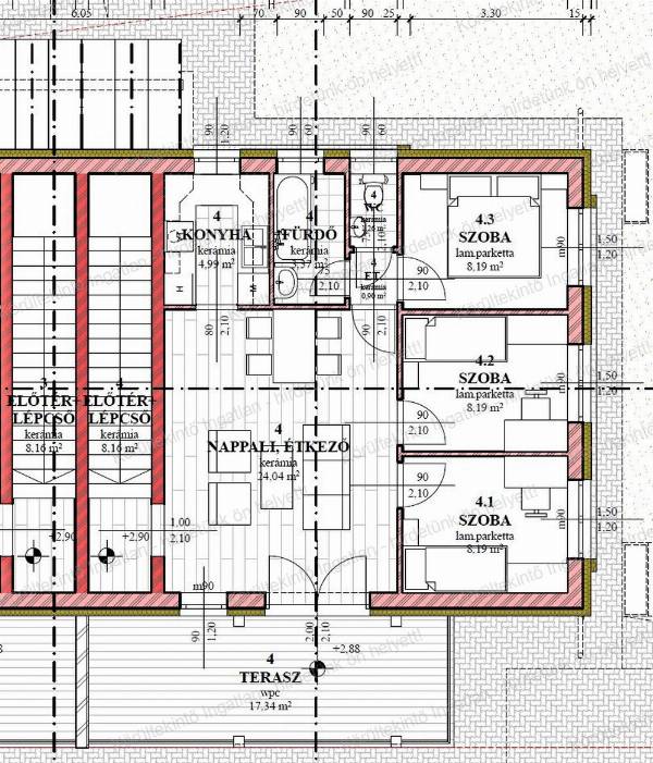
Leírás

Az ingatlan közvetlenül a tulajdonostól eladó, elérhetősége: Egressi Zsolt +36309437452   Cegléden, új utcában, új lakóparkban épülő, 4 lakásos társasház 1. emeletén 70 m²-es, 4 szobás, erkélyes (13 nm), kb. 100 nm kizárólagos használatú kerttel és a társasház udvarán belül egy darab, burkolt kocsibeállóval rendelkező tégla lakás eladó. A lakás nappalija déli fekvésű, a lakás hőszivattyús fűtésű, A+ energetikai besorolású. Az építkezés folyamatban van, várható átadás: 2025.11.30.

További adatok

  • Azonosító: 1659052
  • Épület szintjei: 2
  • Emelet: -
  • Méret: 70 m2
  • Szobák száma: 4 db
  • Félszobák száma: 0 db
  • Fűtés:
  • Állapot: Új építésű
  • Lift: -
  • Erkély/terasz: -

Elhelyezkedés