Ingatlanok összehasonlítása

Pomázon a Meselia déli oldalában egy szintes, nappali + 4 hálószobás ikerház-fél eladó.

Pomáz - Messelia
119.900.000 Ft
1.080.180 Ft / m2

Leírás

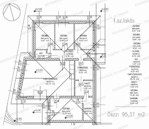
Pomázon a Meselia déli oldalában, csendes környezetben 463 nm-es saját, kizárólagos használatú kerttel rendelkező, egy szintes, nappali + 4 hálószobás ikerház-fél eladó. Az építéssel kapcsolatos paraméterek: - Tervezett átadás 2025 IV. negyedév - hőszivattyús fűtés, padlófűtéssel, radiátorokkal - magas minőségű hőszigetelés, ZÖLD hitelnek megfelelő energetikai besorolás - több rétegű, műanyag nyílászárók - választható belső burkolatok, szaniterek - riasztó rendszer előkészítés - 30 nm-es, az amerikai konyhás nappalihoz kapcsolódó terasz - durva tereprendezés - kulcsrakész átadás Finanszírozási lehetőség: - Zöld hitel kompatibilitás - CSOK (10+15M) hitel, illeték mentesség, Áfa visszatérítés igényelhető. - Az alaprajz igény szerint még módosítható. A beruházó a környék elismert építési vállalkozója, rengeteg referenciamunkával rendelkezik.

További adatok

  • Azonosító: 1659042
  • Épület szintjei: 1
  • Méret: 111 m2
  • Telek méret: 463 m2
  • Szobák száma: 5 db
  • Félszobák száma: 0 db
  • Fűtés: -
  • Állapot: Felújított
  • Építési év: 2025
  • Ház szerkezete: Tégla
  • Erkély/terasz: -
  • Melléképület: -
  • Tetőtér: -

Elhelyezkedés