Ingatlanok összehasonlítása

Eladó 141 nm-es 5 szobás Ház Gödöllő

Gödöllő Gödöllő
124.900.000 Ft
885.816 Ft / m2

Leírás

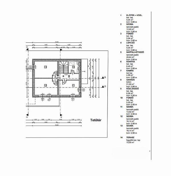
Gödöllőn, Kertvárosban, Új építésű, 2 szintes ikerházfél eladó! Eladásra kínálunk egy 141 m²-es, modern ikerházfelet, amelyhez 272 m² saját telekrész tartozik. Az ingatlan 2026 első felében kerül kulcsrakész állapotba. Az épület társasházzá lesz nyilvánítva. Jelenleg egyénileg választhatóak a burkolatok, nyílás zárok és szaniterek, Utólag beépíthető átfogó tokos ajtó, bruttó 60.000 Ft/db, összeghatárig, a megrendelő igénye szerint. Burkolatok: meleg burkolatköltsége szegély nélkül 5.500 Ft/ nm-ig. Kültéri burkolatok: terasznál fagyálló gres hidegburkolat 6.500 Ft/nm, az ehez tartozó anyagok, fugák, élvédők és munkadíjai szintén az eladó költsége. Választható szaniterek költség határa: Kád: 50.000 Ft/db összeghatárig. Kádtöltő csaptelep 25.000 Ft/db összeghatárig Zuhany csaptelep 25.000 Ft/db összeghatárig Standardmosdó 25.000 Ft/db összeghatárig Mosdó csaptelep 20.000 Ft/db összeghatárig Wc+tartály 45.000 Ft/db összeghatárig. Főbb jellemzők: Hasznos alapterület: 141 m² Telekméret: 272 m² Építés éve: 2026 (új építésű) Falazat: 30 cm Porotherm tégla Válaszfalak: 10 cm Porotherm Szigetelés: 15 cm grafitos dryvit a homlokzaton, aljzatban 10 cm szigetelés Tető: Bramac cserép, tetőtérben 25 cm üveggyapot hőszigetelés Fűtés: Energia hatékony hőszivattyús rendszer Kiváló hő- és hangszigetelés Stabil, beton alap Parkolás: Saját 1 állásos garázs Elrendezés: Földszint: amerikai konyhás nappali, 1 szoba, zuhanyzós fürdőszoba + mellékhelyiség, kamra, tároló, közlekedő, kertkapcsolatos terasz Emelet: 3 külön nyíló hálószoba, kádas fürdőszoba + mellékhelyiség, közlekedő Környék: Közelben számos bevásárlási lehetőség, gyógyszertár, bölcsőde, óvoda, iskola, játszótér található. Pár perc sétára a Mátyás Király utcai vasútállomás található. Az M3-as autópálya pár perc alatt közelíthető meg. Közelben 5, 45, 4, 4A, 24, 45 helyi buszjárat érhető el. Finanszírozás: Az ingatlan banki finanszírozással is megvásárolható, melyben irodánk ingyenes tanácsadással áll rendelkezésükre! Irányár: 124,9 M Ft. VEVŐINK RÉSZÉRE A KÖZVETÍTÉS DÍJTALAN A hirdetésben szereplő adatok tájékoztató jellegűek.

További adatok

  • Azonosító: 1658659
  • Épület szintjei: 2
  • Méret: 141 m2
  • Telek méret: 272 m2
  • Szobák száma: 5 db
  • Félszobák száma: 0 db
  • Fűtés: Egyéb
  • Állapot: Új építésű
  • Építési év: 2025
  • Ház szerkezete: Tégla
  • Erkély/terasz: -
  • Melléképület: -
  • Tetőtér: -

Elhelyezkedés