Ingatlanok összehasonlítása

Győrújbaráton új építésű, nappali + 3 szobás ikerház eladó!

Győrújbarát
89.900.000 Ft
742.975 Ft / m2

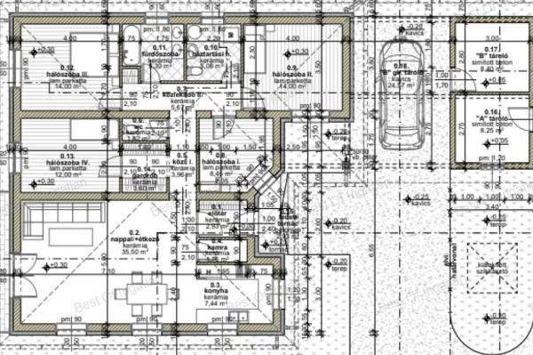
Leírás

A "Best of Ingatlan Győr" Ingatlaniroda eladásra kínálja a Győrtől pár percre Győrújbaráton, 1787 m2-es telken épülő ikerházakat 2026. év tavaszi fűtéskész állapotú átadással. FIGYELEM! ÁRCSÖKKENÉS!   Győrújbaráton, új építésű, nettó 121 m2-es ikerház, 1148 m2-es saját telekrésszel ELADÓ! Legyen az Öné ez a csodás ház SZUPER áron 2026. év tavaszi átadással!   Győrújbarát központi helyén elhelyezkedő 1787 m2 telek, melyre  2 db 1 lakásos lakóház kerül megépítésre.  "B" ház, a telek hátsó részén helyezkedik el, a közös 146 m2-es magánúton keresztül közelíthető meg,  1148 m2-es saját telekrésszel, kb. 18 m utcafronttal rendelkezik. A két családi háznak nincs közös fala, köztük lévő fedett gépkocsibeállók és tárolók találkoznak, teljes mértékben biztosítva ezzel a két család intimitását.   Az épülő ingatlanok 30-as POROTHERM falazóelemekből, DRYVIT-rendszerű homlokzatképzéssel dörzsölt vékony vakolattal, cserépfedéssel, hőszigetelt műanyag nyílászárókkal kerülnek kivitelezésre.  A ház fűtéséről és melegvíz ellátásáról hőszivattyús rendszer gondoskodik. A helyiségekben padlófűtés lesz.   Az házak belső elosztása a következő: a fedett terasz, előtér, kamra, konyha, étkező + nappali, közlekedő, szoba, külön wc, szoba + gardrób, szoba, fürdőszoba, közlekedő, háztartási helyiség, szoba. Mindhárom hálószoba élhető méretű, jól bútorozható.   Vételár 2026. év tavaszi fűtéskész átadással: 89.900.000,-Ft, mely tartalmazza a telek árát is!   A kivitelező megegyezés szerint vállalja a kulcsrakész befejezést is, melyekről további információt irodánkban kaphat. Hívjon most, nehogy lemaradjon róla! Tankovics Dóra +36 30/216-1372   További szolgáltatásaink: - díjmentes, bankfüggetlen hitelügyintézés - értékbecslés - energetikai tanúsítvány - ügyvédi ügyintézés - biztosítás

További adatok

  • Azonosító: 1658543
  • Épület szintjei: 1
  • Méret: 121 m2
  • Telek méret: 1148 m2
  • Szobák száma: 5 db
  • Félszobák száma: 0 db
  • Fűtés: -
  • Állapot: Újszerű
  • Építési év: 2025
  • Ház szerkezete: Tégla
  • Erkély/terasz: -
  • Melléképület: -
  • Tetőtér: -

Elhelyezkedés