Ingatlanok összehasonlítása

Eladó 82 nm-es 4 szobás Lakás Vácrátót

Vácrátót
105.000.000 Ft
1.280.488 Ft / m2

Leírás

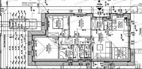
ÚJ ÉPÍTÉSŰ IKERHÁZ eladó Vácrátóton a lakóparkban a természethez közel! A FÖLDSZINTES ikerház több méretben, amerikai konyhás nappali+3 vagy 4 hálószoba, fürdőszoba, háztartási helyiség, kamra, előszoba, külön mellékhelyiséggel épül meg. A ház a mai energetikai elvárásoknak megfelelően épül: hőszivattyús fűtésrendszer padlófűtéssel mindenhol,  Burkolatok, szaniterek, belső ajtók igény szerint választhatók. Redőny előkészítés, elektromos kiállással, napelem előkészítés az árban. H taifás villany óra szintén a vételárban. Pakolható terhelhető betonfödém.  Referenciákkal rendelkező, nagy múltú kivitelezőtől! CSALÁDI OTTHONTEREMTÉSI KEDVEZMÉNY (CSOK) és az ILLETÉKKEDVEZMÉNYEK igénybe vehetők, hitelügyintézésben díjtalanul segítséget nyújtunk. Megtekinthető telefonos időpont-egyeztetés alapján: Czirják Mihály 20/220-9995

További adatok

  • Azonosító: 1658504
  • Épület szintjei: -
  • Emelet: -
  • Méret: 82 m2
  • Szobák száma: 4 db
  • Félszobák száma: 0 db
  • Fűtés:
  • Állapot:
  • Lift: -
  • Erkély/terasz: -

Elhelyezkedés