Ingatlanok összehasonlítása

Mezőtúron eladó 813 nm telken, 158 nm 5 szobás családi ház fő út mellett !

Mezőtúr - Felsőrész
16.900.000 Ft
106.962 Ft / m2

Leírás

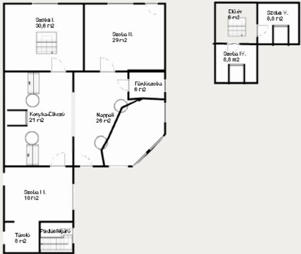
Mezőtúron eladó 813 nm telken, 158 nm 5 szobás családi ház fő út mellett ! -  A családi ház vegyes falazatú, részben hőszigetelt, teljeskörűen felújítandó állapotú ! - A földszinten a nappali, étkező, konyha közös térben van kialakítva igazán a tágas nagy család számára is kiváló központi hely. - 3 szoba amelyből 2 van használatban és a fürdőszoba kapott helyet a földszinten. - Belmagassága 3 méter, belső kialakítása egyedi. - A padlás térben további 2 hálószoba van ahová az egyik földszinti szobából vezet lépcső. - Ivóvíz, villany, központi szennyvíz bekötve a családi házba, gáz telken belül. Közelben általános iskola, vasútállomás, gyógyszertár háziorvosi rendelő, üzletek   Csere lehetséges kisebb értékű családi házra a környéken. Tágas tereket kedvelő új tulajdonosát keresi a családi ház ! Hívjon bátran ! +36703830610

További adatok

  • Azonosító: 1658422
  • Épület szintjei: -
  • Méret: 158 m2
  • Telek méret: 813 m2
  • Szobák száma: 0 db
  • Félszobák száma: 0 db
  • Fűtés: -
  • Állapot: Felújítandó
  • Építési év: -
  • Ház szerkezete: Egyéb vegyes (vályog)
  • Erkély/terasz: -
  • Melléképület: -
  • Tetőtér: -

Elhelyezkedés