Ingatlanok összehasonlítása

Eladó 90 nm-es Ház Vácrátót

Vácrátót
99.800.000 Ft
1.108.889 Ft / m2

Leírás

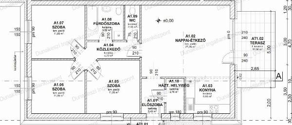
Kíváló Minőségben épült , NAGYON ALACSONY ENERGIAFELHASZNÁLÁSÚ ikerház eladó! Jól szigetelt épület padlófűtéssel, hőszivattyúval, műanyag nyílászárókkal.    A további műszaki tartalomból: Szerkezet: - 30cm-as NF Leier falazó téglával falazva,  válaszfal 10-es Leier. - Beton pallófödém készült. Szarufák pácolva (Palisander). - Padlástér 25 cm vastag Ursa kőzetgyapottal lesz szigetelve. -Bramac, Római Novo típusú barna betoncseréppel van fedve, alatta pára áteresztő fóliával ellátva. Esővíz elvezetés bádogcsatornával a járda szintig, szikkasztó gödörbe belevezetve. - A nyílászárók fehér színű műanyag, 3 üveg réteggel, kívül- belül műanyag ablakpárkánnyal van beépítve. - Kültéri homlokzat 15 cm-es hungarocellel szigetelve. - Utólag beépíthető beltéri ajtókat építünk be, Vevő által választott színben, típusban 70.000Ft/db árig, kilincs 5.000Ft-ig/db választható a katalógusból. -Fürdőszobában fénycsatorna be lesz építve.   Fűtés: - Sinclair MSH 240TB -3/9 beépített HMV tartállyal 8 kw -os hőszivattyú lesz beépítve, minden helyiségben padlófűtés. A melegvizet a beépített elektromos tartály biztosítja, ami a háztartási helyiségben lesz elhelyezve. Digitális (nem programozható) termosztátokat szerelünk fel.   Villany: - A lakás egyéni mérővel rendelkezik, 3x16 Amper + H tarifa - Minden szobában és a nappaliban internet kiállást biztosítunk kábel kivezetővel. - Kb. 50db aljzat kapcsolók és konnektorok.   Burkolás: - Hidegburkolatot rakunk: Fürdőszoba, wc, konyha, előszoba. - Laminált lapot rakunk: Szobák, nappali, közlekedő. - Hidegburkolatokra visszaadunk 5.000Ft/m2 összeget. - Laminált lapra visszaadunk 5.000Ft /m2 összeget, alátétet, fóliát és a szegő lécet a megadott m2  ár tartalmazza. - A fürdőszoba szerelvényeire, csaptelepek, mosdó megvásárlására visszaadunk 200.000Ft-ot. - Konyhában a konyhaszekrény közötti fal burkolását 60cm szélességben vállaljuk. - Fürdőszobában 220cm magasságig burkolunk, wc-ben 160 cm-ig.   Festés: - A  falak vakolva, kétszer glettelve, tört fehér színre festve (S 1002-Y50R). - Műanyag könyöklők lesznek felragasztva.   Kert: - Esővíz elvezetés az udvaron, szikkasztó gödörbe vezetve. - Minkét lakás vízórája és villanyórája az 1. lakás udvarán található.     Kérem forduljon hozzám bizalommal, és egyeztessünk megtekintési időpontot!   TEKINTSE MEG IRODÁNK TOVÁBBI KÍNÁLATÁT LOGÓNKRA KATTINTVA.    

További adatok

  • Azonosító: 1658309
  • Épület szintjei: -
  • Méret: 90 m2
  • Telek méret: 450 m2
  • Szobák száma: 0 db
  • Félszobák száma: 0 db
  • Fűtés: -
  • Állapot: -
  • Építési év: -
  • Ház szerkezete: -
  • Erkély/terasz: -
  • Melléképület: -
  • Tetőtér: -

Elhelyezkedés