Ingatlanok összehasonlítása

Eladó 126 nm-es 5 szobás Ház Bicske

Bicske Bicske kertváros
98.900.000 Ft
784.921 Ft / m2

Leírás

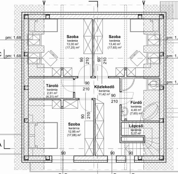
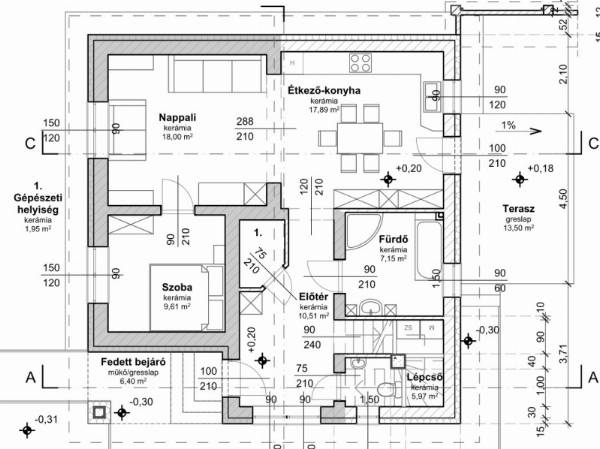
Eladó Bicske kertvárosi részén egy kétszintes, nettó 126 nm-es családi ház a hozzá tartozó 400 nm-es telekkel. Földszinten: hatalmas előszoba (10,51 nm), nappali (18nm), konyha-étkező (17,89 nm), vendégszoba (9,61 nm) fürdő (7,15 nm) külön WC Emelet tetőtér beépítésű, 3 hálószobából kettő tetőtéri ablakkal, egy pedig rendes oldalfali ablakkal ellátott. Hasznos alapterületük 17 nm körüliek. Ezen a szinten van még egy 7 nm-es fürdő WC-vel, illetve egy tároló-gardrób helyiség (4,31 nm) Műszaki paraméterek: 30-as tégla falazat rajta 15 cm dryvit szigeteléssel Beton tetőcserép 3 rétegű műanyag fehér nyílászárók elektromos redőnnyel szerelve Minden helyiségben padlófűtés hőszivattyús rendszerrel H-tarifás villanyóra Nappaliban illetve hálószobákban 1-1 db hűtő - fűtő klíma A hirdetésben szereplő ház egy régebbi ház teljes újjáépítéséből született. 2 főfal kivételével minden új. A telek osztott tulajdonú, társasházi alapító okirattal kerülnek átadásra. Az ingatlan utcafrontról megközelíthető, a hátsó ingatlanhoz szolgalmi út vezet. A két épület között 10 méter a távolság. Burkolatok 2025 decemberéig szabadon választhatók. Használatbavételi engedély előre láthatóan 2026 márciusára várható. A ház megfelel az új CSOK Plusz feltételeinek, illetve igénybe vehető rá a az Otthon Start hitel is, így különösen jó lehetőség azoknak, akik saját elképzeléseik alapján szeretnék kialakítani otthonukat. Az ingatlan kedvező elhelyezkedése és infrastruktúrája, rendkívül vonzóvá teszi. Több útvonalon is megközelíthető Budapest. Bankfüggetlen hitel tanácsadónk díjmentesen áll az Ön rendelkezésére! Keressen bizalommal! A hirdetésben szereplő adatok, információk, képek, alaprajzok stb... tájékoztató jellegűek! Irodánk az esetleges elírásokért felelősséget nem tud vállalni! Tájékoztatjuk a Tisztelt Érdeklődőket, hogy az ingatlan hirdetésében szereplő telefonszám felhívásával Önök hozzájárulnak személyes adataik (név, telefonszám), a hirdetést feladó Kft. - által a bizalmas kezeléshez és nyilvántartáshoz. További információért hívjon bizalommal a hét minden napján! Köszönöm, hogy időt szánt hirdetésemre, sikeres ingatlanvásárlást kívánok!

További adatok

  • Azonosító: 1657899
  • Épület szintjei: 2
  • Méret: 126 m2
  • Telek méret: 400 m2
  • Szobák száma: 5 db
  • Félszobák száma: 0 db
  • Fűtés: -
  • Állapot: Felújított
  • Építési év: -
  • Ház szerkezete: Tégla
  • Erkély/terasz: -
  • Melléképület: -
  • Tetőtér: -

Elhelyezkedés