Ingatlanok összehasonlítása

Eladó 104 nm-es Ház Mezőtúr

Mezőtúr - Alsórész
12.000.000 Ft
115.385 Ft / m2

Leírás

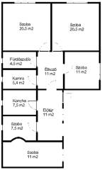
 Mezőtúron eladó 73 nm lakóterű családi ház 416 nm -es telken ! A családi ház 1970 - es évek elején épült, kádár kocka, beton alappal, tégla falazattal, pala tetővel. -  3 szobás családi ház, bővítéssel 104 nm alapterületű, előtér, konyha és 1 + 1 fél szoba van kialakítva. - Közműellátottság: villany, ivóvíz, központi szennyvíz elvezetés. Gáz a telken belül. - A családi ház teljes körűen felújítandó, szerkezetileg stabil.  - Alsórész városrészen található, jó szomszédokkal.könnyen megközelíthető helyen. - A telken kisebb ól található jó állapotban és még egy kerti toalett.    Amennyiben családi házra vágyik kevés kerti munkával, mégis elegendő lakó térrel itt a remek lehetőség ! Családalapítás előtt álló fiatal pár, nagyobb család, több generáció, befektetés céljából kiváló adottságokkal rendelkezik a családi ház. A hirdetésben szereplő információk az Eladótól származnak. Pontosságukért felelőséget nem vállalunk! Amennyiben felkeltette érdeklődését a családi ház, hívjon bátran ! +3670380610 telefonszámon

További adatok

  • Azonosító: 1657533
  • Épület szintjei: -
  • Méret: 104 m2
  • Telek méret: 416 m2
  • Szobák száma: 0 db
  • Félszobák száma: 0 db
  • Fűtés: -
  • Állapot: Felújítandó
  • Építési év: 1970
  • Ház szerkezete: Tégla
  • Erkély/terasz: -
  • Melléképület: -
  • Tetőtér: -

Elhelyezkedés