Ingatlanok összehasonlítása

Nappali + 2 szobás lakás

Győr - Szabadhegy
69.900.000 Ft
1.075.385 Ft / m2

Leírás

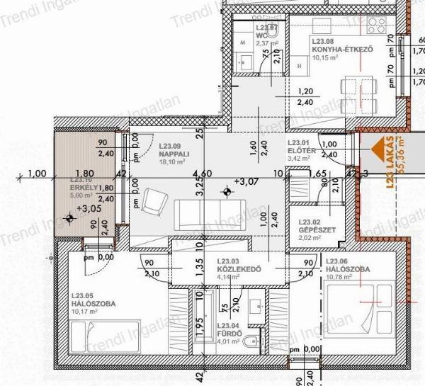
Győr-Szabadhegy mellékutcájában új építésű 28 lakásos társasházban különböző alapterületű lakások eladók. A modern társasházban nappali + 1 szobás, nappali + 2 szobás és nappali + 3 szobás lakások kerülnek kialakításra. A földszinti lakások kertkapcsolattal és terasszal, az emeleti lakások erkéllyel, galériával és tetőterasszal, a penthouse lakások tetőterasszal rendelkeznek. A meghirdetett 1. emeleten található 65,16 nm-es lakásban konyha-étkező, nappali, 2 szoba, fürdőszoba, külön WC, közlekedő, gépészet és előtér található. Nappaliból 5,49 nm-es terasz nyílik. A lakás fűtéskész ára: 69.900.000 Ft. Kulcsrakész befejezés kérhető. Gépkocsibeállló ára: 2.900.000 Ft Fedett gépkocsibeálló ára: 4.900.000 Ft Lehetőség van tároló vásárlására is, ára: 3.500.000 Ft – 3.900.000 Ft A társasház 30 cm-es falazóelemből, 15 cm-es homlokzati hőszigeteléssel épül. A homlokzati műanyag nyílászárók 3 rétegűek. Az ingatlanok fűtése kondenzációs gázkazánnal történik, lakásonként egyedi hőmennyiségmérővel és hőmérséklet szabályozó termosztáttal, hőleadás padlófűtéssel. Az ár 1 db klímaelőkészítést tartalmaz. Várható átadás: 2027 tavasz Bővebb információkért forduljon hozzám bizalommal. Hétköznap és hétvégén is várom hívását! Díjmentes, bankfüggetlen hitelügyintézéssel állunk rendelkezésére. A hirdetésben feltüntetett képek illusztrációk.

További adatok

  • Azonosító: 1657367
  • Épület szintjei: -
  • Emelet: -
  • Méret: 65 m2
  • Szobák száma: 3 db
  • Félszobák száma: 0 db
  • Fűtés:
  • Állapot: Új építésű
  • Lift: -
  • Erkély/terasz: -

Elhelyezkedés