Ingatlanok összehasonlítása

Eladó 53 nm-es Lakás Mosonmagyaróvár

Mosonmagyaróvár
37.900.000 Ft
715.094 Ft / m2

Leírás

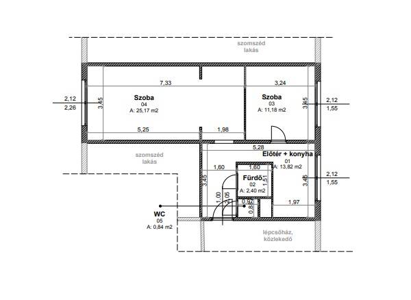
Kizárólag Nálunk! Eladó egy 53 m²-es, 2 szoba + hall elosztású panellakást a Móra lakótelepen, 4. emeleti elhelyezéssel.   Ár: 37,9M Ft  Alapterület: 53 m²  Szobák: 2 + hall  Állapot: Szigetelt, műanyag ablakokkal, jó állapotú Környék: Boltok, óvoda, iskola a közelben – ideális családoknak vagy befektetésnek!   Leírás: Ez a praktikus elosztású lakás csendes, zöldövezeti környezetben található, Mosonmagyaróvár népszerű Móra lakótelepén. A szigetelés és modern műanyag ablakok biztosítják a kellemes hőmérsékletet és alacsony rezsit. Befektetőknek is remek választás, hiszen a környék népszerű, és a lakás könnyen kiadható.   Érdekel? Kérj személyes bemutatást vagy további infót!  Kapcsolat: Palotai Evelin , +36305944088  Ne habozz, nézd meg most – tökéletes otthon vagy befektetés vár rád!   

További adatok

  • Azonosító: 1657329
  • Épület szintjei: -
  • Emelet: -
  • Méret: 53 m2
  • Szobák száma: 0 db
  • Félszobák száma: 0 db
  • Fűtés:
  • Állapot: Átlagos
  • Lift: -
  • Erkély/terasz: -

Elhelyezkedés