Ingatlanok összehasonlítása

Eladó 122 nm-es 5 szobás Ház Göd

Göd
144.900.000 Ft
1.187.705 Ft / m2

Leírás

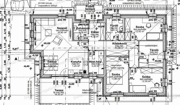
Gödön a Nevelekben, csendes már beépült, zöld környezetben, ÚJ ÉPÍTÉSŰ FÖLDSZINTES, takarékos önálló családiház eladó.  Az ház elrendezése kiváló. Az épület nagyon jó minőségben, magas műszaki tartalommal készül.  A műszaki tartalomból:  30-as PTH tégla+ 15 cm dryvitszigetelés Betonfödém Bramac tetőcserép Fehér, műanyag bejátrati ajtó, valamint ablakok háromrétegű üvegezéssel. Elektromos alumínium redőnyök. Térkövezett gk. beálló és gyalogos járda. 10 kw-os hőszívattyú padlófűtéssel, valamint magasoldalfali fancoilok előcsövezése hűtéshez-fűtéshez. Választható műszaki tartalom: Szaniterek br. 600.000 Ft Hidegburkolat br. 10.000 Ft/ nm Melegburkolat (vynil) br. 8500 Ft/ nm Beltéri ajtó br. 100.000 Ft/db kilinccsel együtt   OTTHON START HITEL PROGRAM, CSALÁDI OTTHONTEREMTÉSI KEDVEZMÉNY (CSOK) és az ILLETÉKKEDVEZMÉNYEK igénybe vehetők, hitelügyintézésben díjtalanul segítséget nyújtunk. Megtekinthető telefonos időpont-egyeztetés alapján: Lovack Tamás 20/559-3395

További adatok

  • Azonosító: 1657306
  • Épület szintjei: -
  • Méret: 122 m2
  • Telek méret: 780 m2
  • Szobák száma: 5 db
  • Félszobák száma: 0 db
  • Fűtés: -
  • Állapot: -
  • Építési év: -
  • Ház szerkezete: -
  • Erkély/terasz: -
  • Melléképület: -
  • Tetőtér: -

Elhelyezkedés