Ingatlanok összehasonlítása

Eladó családi ház Baksán – nyugodt, barátságos környezetben.

Baksa Zrínyi utca
33.800.000 Ft
304.505 Ft / m2

Leírás

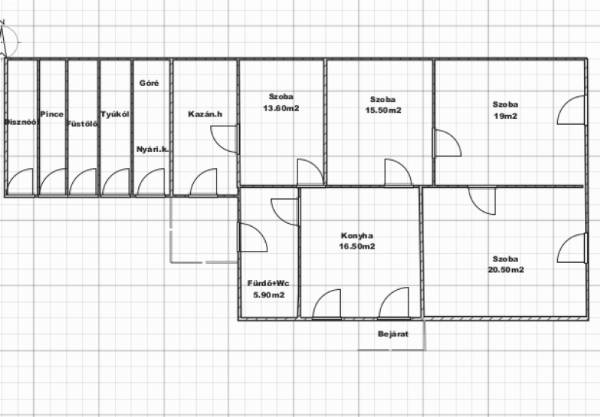
Eladásra kínálunk egy jó állapotú, vegyes falazatú (tégla és vályog) családi házat Baranya megyében, a csendes és barátságos hangulatú Baksán. Az ingatlan egy 2224 m²-es, gondozott telken helyezkedik el, mely kiválóan alkalmas zöldségtermesztésre, kertészkedésre vagy egyéb mezőgazdasági tevékenységre, mivel a föld művelhető állapotban van. A kertben fiatal, termő gyümölcsfák is megtalálhatók, amelyek tovább növelik a birtok értékét és hangulatát. A ház tágas és jól kihasználható elrendezésű, összesen 3 és fél szoba áll rendelkezésre, továbbá egy felújított konyha, fürdőszoba WC-vel, valamint egy kazánház és melléképületek is tartoznak hozzá. A fűtésről vegyestüzelésű kazán gondoskodik (fa-szén), házközponti radiátoros rendszerrel, míg a melegvíz-ellátást villanybojler biztosítja. Az épület korszerűsítésen is átesett, 2 évvel ezelőtt teljes körűen megújult az elektromos hálózat. Ugyanebben az időben a konyha és a fürdőszoba is felújításra került. A tetőszerkezet 5 évvel ezelőtt teljes cserén esett át, így hosszú távon sem igényel beavatkozást. A biztonságot és kényelmet modern műanyag nyílászárók és egy masszív biztonsági bejárati ajtó fokozzák. A szennyvízelvezetés korszerű bio szennyvíztisztító rendszeren keresztül történik, amely környezetbarát és gazdaságos megoldás. A ház szerkezetileg stabil és jó állapotban van, csupán kisebb külső esztétikai javítások szükségesek, amelyek lehetőséget adnak az új tulajdonosnak arra, hogy saját ízlése szerint alakítsa tovább otthonát. Elhelyezkedés szempontjából rendkívül kedvező: – Pécs kb. 20 km – Harkány kb. 20 km – Sellye kb. 18 km távolságra található A település jól ellátott, a mindennapi élethez szükséges szolgáltatások könnyen elérhetők: óvoda, iskola, orvosi rendelő, gyógyszertár, bolt, dohánybolt, játszótér, és bankautomata is rendelkezésre áll. A közlekedés is kiváló: a ház közelében található buszmegállóból sűrű járatok indulnak Pécs felé és természetesen Pécs irányából. Így azok számára is ideális választás, akik a város közelségét keresik, de nyugodt, természetközeli környezetre vágynak. Ez az ingatlan ideális lehet mind azok számára, akik vidéki nyugalomra, tágas kertre, gazdálkodásra alkalmas területre vágynak, de fontos számukra a város közelsége és a kényelmes, jól felszerelt otthon. Elérhető a Falusi CSOK, amely vissza nem térítendő támogatást és kedvezményes hitelt kínál vidéki családok számára. Az Otthonteremtő támogatás fiatal családokat segít alacsony kamatozású lakáshitellel, míg az Otthonfelújítási támogatás a korszerűsítés költségeinek egy részét téríti vissza. Ügyvédi és hitelügyintézést is biztosítunk, hogy a vásárlás minden lépése gördülékenyen és biztonságosan történjen. Amennyiben felkeltette érdeklődését az ingatlan vagy a finanszírozási lehetőségek! Kérem, keressen bizalommal! Szívesen segítünk és válaszolunk minden kérdésére!

További adatok

  • Azonosító: 1657257
  • Épület szintjei: 1
  • Méret: 111 m2
  • Telek méret: 2224 m2
  • Szobák száma: 3 db
  • Félszobák száma: 1 db
  • Fűtés: Házközponti
  • Állapot: Átlagos
  • Építési év: 1960
  • Ház szerkezete: Egyéb vegyes (vályog)
  • Erkély/terasz: Nincs
  • Melléképület: -
  • Tetőtér: -

Elhelyezkedés