Ingatlanok összehasonlítása

Eladó 122 nm-es 4 szobás Lakás Gyál

Gyál Gyál
112.990.000 Ft
926.148 Ft / m2

Leírás

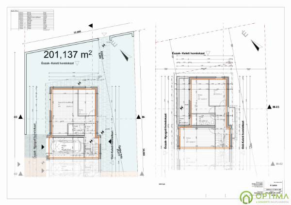
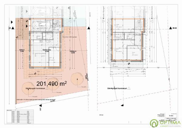
ÁLMAI OTTHONA GYÁLON Gyál egyik legkedveltebb, nyugodt mellékutcájában kínálok megvásárlásra egy modern, kétlakásos ikerházat, amely a kényelmet, a biztonságot és az energiahatékonyságot ötvözi. Az ingatlan főbb jellemzői: Alapterület és kert: „A” lakás: nettó 121,89 m² + 201,1 m² saját kert „B” lakás: nettó 136,87 m² + 201,4 m² saját kert Árak: 112.990.000 Ft és 126.990.000 Ft, a vételár tartalmazza a saját garázst és a teljesen gépesített, vadonatúj konyhát. Személyre szabhatóság: a jelenlegi építési fázisban a belső elrendezés még alakítható – akár nappali + 3 hálószoba, vagy nappali + 4 szoba kialakítással. A burkolatok, beltéri ajtók és konyhabútor is választható a kínálatból. Minőség és műszaki tartalom: - Monolit vasbeton alap, - 30 cm Leier hőszigetelő tégla falazat, - 12 cm homlokzati szigetelés, - 20 cm üveggyapot födémszigetelés, - Silka mészhomok válaszfalak a kiváló hangszigetelésért, - Többponton záródású, MABISZ-minősített biztonsági bejárati ajtók, - 3 rétegű, hőszigetelt műanyag ablakok külső alumínium és belső műanyag párkányokkal - Vakolható redőnyszekrények, előkészítéssel alumínium redőnyök és szúnyoghálók számára Korszerű, energiatakarékos megoldások: - Levegő–víz hőszivattyús rendszer, -Padlófűtés a teljes lakótérben, fan-coil rendszerrel kiegészítve - A+ energetikai besorolás – alacsony fenntartási költségekkel - H tarifás áramellátás, környezettudatos megoldások Extra kényelmi és biztonsági funkciók: - Saját garázs közvetlen lakótéri kapcsolattal - Elektromos garázskapu - Riasztórendszer - Okosotthon előkészítés - Rendezett, parkosított saját kert: ideális családi programokhoz, pihenéshez vagy akár konyhakert kialakítására Elhelyezkedés: Az ingatlan Gyál egy csendes, rendezett családi házas utcájában található, a XVIII. kerület szomszédságában. Budapest autóval és tömegközlekedéssel is könnyedén elérhető. A közelben óvoda, iskola, valamint bevásárlási lehetőségek biztosítják a mindennapi kényelmet. További előnyök: ✅ Magas minőségű kivitelezés, tapasztalt beruházótól ✅ Saját garázs és privát kert ✅ Egyedi, személyre szabható belső kialakítás ✅ Vadonatúj, gépesített konyha az árban ✅ CSOK+ feltételeknek megfelelő ingatlan Átadás várható időpontja: 2025 december Ne csak álmodjon a tökéletes otthonról, ÉLJE MEG, VÁLTSA VALÓRA! Ez a gyáli ikerház minden részletében a kényelmet, biztonságot és értékállóságot képviseli, ide élmény lesz hazatérni! A házzal kapcsolatos bővebb információért keressen bizalommal! Várom hívását a hét minden napján, akár az esti órákban is!

További adatok

  • Azonosító: 1657200
  • Épület szintjei: 2
  • Emelet: -
  • Méret: 122 m2
  • Szobák száma: 4 db
  • Félszobák száma: 0 db
  • Fűtés:
  • Állapot: Új építésű
  • Lift: -
  • Erkély/terasz: -

Elhelyezkedés