Ingatlanok összehasonlítása

NYÍRPAZONYBAN ÚJ ÉPÍTÉSŰ, ÖNÁLLÓ CSALÁDI HÁZ ELADÓ!

Nyírpazony
82.000.000 Ft
656.000 Ft / m2

Leírás

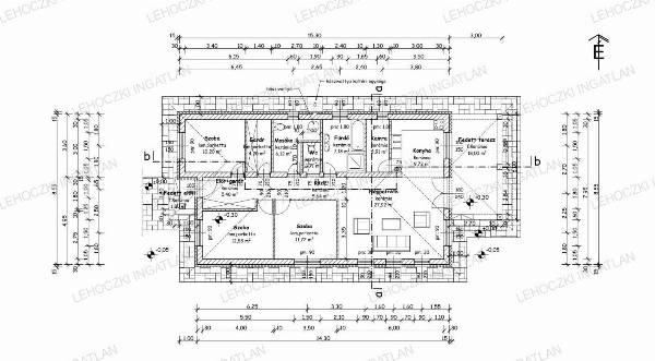
Nyírpazony kedvelt részén megbízható, számos referenciával rendelkező, komoly kivitelezőtől 125,05 nm-es, nappali - amerikai konyha + 3 szobás ÖNÁLLÓ CSALÁDI HÁZ 700 nm-es telken eladó!   Az ingatlan főbb jellemzői:   Az ingatlan földszintes kialakítással kerül megépítésre DK-i tájolással. Az épületbe az előtéren és közlekedőn keresztül a nappali étkezőbe juthatunk. Itt található a konyha, melyhez kamra kapcsolódik. A közlekedőből érjük el a külön nyíló 3 szobát, illetve az ehhez kapcsolódó fürdőt, gardróbot, mosókonyhát és egy különálló wc-t. A nappalihoz egy 18 nm-es fedett terasz is kapcsolódik a belső kert felé. - Porotherm 30 N+F tégla falazatú, 15 cm homlokzati hőszigeteléssel, - fokozottan hőszigetelt, műanyag 6 légkamrás, 3 rétegű nyílászárók, barna színben, - födémszerkezete fa gerendás födémmel készül, födémszigeteléssel, - tető nyeregtetős, tető héjazata TERRAN tetőcserép, - fűtése 1 db 8 kW-os GREE levegős hőszivattyúval megoldott, padlófűtéssel,   Burkolatok, szaniterek, beltéri ajtók még választhatóak értékegyeztetéssel. A kerítés és a térburkolat a vételár részét képezik.   Jelenleg az alapozási munkák zajlanak.   Várható átadás: 2026. tavasz   Az építtető egy a mai kor igényeit minden tekintetben kielégítő időtálló és igényes minőséget követel meg a tervezett beruházás eredményeként létrejövő épülettől, mely megfelel a hosszútávon jelentkező igényeknek.   Díjmentes hitel, OTTHON START, Babaváró, Biztosítások ügyintézése! Ügyfeleink számára minden szolgáltatásunk DÍJMENTES!   Tel:+36 30 579 6521 Lehoczki Mihály Ingatlanközvetítő

További adatok

  • Azonosító: 1657171
  • Épület szintjei: 1
  • Méret: 125 m2
  • Telek méret: 700 m2
  • Szobák száma: 4 db
  • Félszobák száma: 0 db
  • Fűtés: -
  • Állapot: Új építésű
  • Építési év: 2025
  • Ház szerkezete: Tégla
  • Erkély/terasz: -
  • Melléképület: -
  • Tetőtér: -

Elhelyezkedés