Ingatlanok összehasonlítása

Eladó 463982 nm-es Lakás Cserkeszőlő

Cserkeszőlő
39.820.000 Ft
86 Ft / m2

Leírás

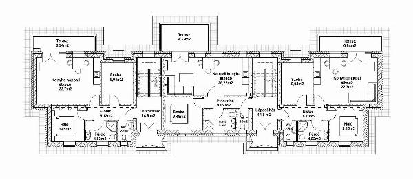
Cserkeszőlő szívében, a fürdőhöz közel, kiemelt pihenőövezetben épül az Akácliget lakópark, ahol kényelmes, otthonos lakások várják új lakóikat. A lakópark saját játszótérrel és medencével   készül, így családoknak és befektetőknek egyaránt kiváló választás.  Az épület földszint plusz két emelet, a lakások két méretben elérhetők, 45m2 és 54m2.   Burkolatok: Egyénileg választható, az árban bruttó 5.000.-Ft/m kerül elszámolásra. Fűtés.: Alapesetben hőszivattyús, lakásonként mérővel, később amennyiben kapunk engedélyt, Termál vízfűtésre szeretnénk átállni.  Műszaki megoldás: Padlófűtés Parkoló: Lakásonként 1 db ingyenes a lakóparkban. Földszinti lakásoknál 90 m2 kert kizárólagos használata, díj ellenében.   Az „A” épület kivitelezése 2025. július 01.-el indul, befejezés 2026 szeptember 30. A lakópark végleges formában összesen 48 lakás készül.  A teljes projekt befejezésével egyidőben, elkészül a medence, illetve a játszótér, valamint a parkosítás is.   A fizetés rugalmasan, mindig az építkezés aktuális készültségi fokához igazodva történik. A lakásokhoz igénybe vehető a CSOK Plusz és a 3%-os kamattámogatott hitel is. Az Árkádia Ingatlan Iroda  teljes körű szolgáltatással segíti ügyfeleit: a hitelügyintézéstől az ingatlan értékbecslésen át egészen az energetikai tanúsítvány elkészítéséig mindenben számíthat ránk. A Cserkeszőlői gyógyvíz magas ásványianyag-tartalmának köszönhetően jótékonyan hat a szervezetre. Nem véletlen, hogy egyre többen választják Cserkeszőlőt otthonuknak vagy befektetésük helyszínéül – itt valóban jó élni és jó befektetni.

További adatok

  • Azonosító: 1656969
  • Épület szintjei: -
  • Emelet: -
  • Méret: 463982 m2
  • Szobák száma: 0 db
  • Félszobák száma: 0 db
  • Fűtés:
  • Állapot: Új építésű
  • Lift: -
  • Erkély/terasz: -

Elhelyezkedés