Ingatlanok összehasonlítása

Tatán, 67 nm-es Társasházi lakás saját kerttel, kocsibeállóval Eladó!

Tata
79.900.000 Ft
1.192.537 Ft / m2

Leírás

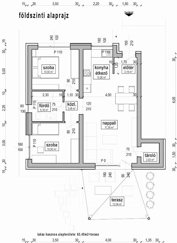
Eladásra kínálunk egy 2020-ban átadott, mindössze négy lakásból álló társasház földszintjén lévő, szélső elhelyezkedésű lakását, amely kiváló adottságaival kényelmes otthont és értékálló befektetést kínál. Az eladó társasházi lakás 67 nm hasznos alapterületű, amelyhez 291 nm-es, teljesen körbekerített, kizárólagos használatú kert tartozik. A kertben egy 12 nm-es, fedett terasz kapott helyet, amely ideális helyszín pihenéshez és kikapcsolódáshoz. Reggelente itt elfogyasztva reggeli kávénkat-teánkat máris jobban indul a napunk.   A panoráma különleges értéket képvisel, hiszen a Tatai Várra, a Szent Kereszt felmagasztalása templomra és a Gerecse vonulataira nyílik kilátás. A kertben emellett egy praktikus tároló is található, amely fészerként szolgál, így kerékpárok, szerszámok és egyéb eszközök biztonságos elhelyezésére is alkalmas.   A gépjárművek számára két, összesen 25 négyzetméteres kocsibeálló biztosít kényelmes parkolási lehetőséget. Az épület korszerű, téglából épült, 20 centiméteres külső szigeteléssel és hőszigetelt üvegezésű műanyag nyílászárókkal. Az eladó társasház energiaellátását egy 2,5 kW teljesítményű hőszivattyú biztosítja, amely padlófűtést és mennyezeti hűtést működtet, így radiátorokra nincs szükség, a hőmérséklet minden évszakban egyenletes és komfortos. A villamosenergia-felhasználás gazdaságosságát H-tarifás mérő segíti, a kiépített vízlágyító berendezésnek köszönhetően pedig a vízkő teljes mértékben elkerülhető, ami a háztartási gépek és szerelvények hosszú élettartamát biztosítja.   Az eladó társasházi lakás energetikai tanúsítvány szerint A+ besorolású, amely a legmodernebb, energiahatékony otthonok közé sorolja. A kamerarendszer kiépítésének előkészítése megtörtént, így az új tulajdonos számára könnyen beszerelhető és bővíthető a biztonságtechnikai rendszer.   Az eladó társasházi lakás közös költsége mindössze 11.600 forint havonta, amely fedezi a közös területek fenntartásának és karbantartásának költségeit.   Az alaprajzi elrendezés átgondolt és praktikus: A bejáraton belépve egy amerikai konyhás nappaliba érkezünk, amely a lakás központi élettereként funkcionál. Innen balra és jobbra egy-egy szoba nyílik, amelyek hálószobaként, gyerekszobaként vagy dolgozószobaként is használhatók. A nappalival szemben található a tágas fürdőszoba, amelyben a kád mellett külön zuhanyzó is helyet kapott, így a mindennapi használat egyszerre kényelmes és sokoldalú.   Az eladó társasházi lakás elhelyezkedése szintén kiemelkedő. Az M1-es autópálya néhány perc alatt elérhető, így Budapest és Győr irányába is gyors és kényelmes közlekedést biztosít, miközben Tata központja, a bevásárlási lehetőségek, az iskolák és az óvodák is könnyen megközelíthetők.   Ez az eladó társasházi lakás nemcsak kiváló műszaki és esztétikai jellemzőkkel rendelkezik, hanem sokféle élethelyzethez is tökéletes választás lehet. Családok számára biztonságos, nyugodt környezetet nyújt, ahol a gyerekek saját kertben játszhatnak. Friss házasoknak és pároknak ideális kezdő otthon, amely hosszú távon is fenntartható, modern és kényelmes életvitelt kínál. Befektetőknek pedig értékálló választás, hiszen az elhelyezkedés, a korszerű műszaki tartalom és a gazdaságos fenntarthatóság mind hozzájárul ahhoz, hogy az ingatlan bérbeadás esetén is vonzó maradjon.   Bátran ajánlom minden kedves érdeklődőnek ezt a szuper lakást ahová szó szerint csak beköltözni kell. Beköltözve nincs más dolgunk, mint szerető családunk körében gyűjteni a csodás emlékeket!   Adatbázisunkban számos eladó-kiadó ingatlan közül választhat. Személyre szabott ügyintézéssel, ügyvédi háttérrel állunk ügyfeleink rendelkezésére. 15 éves értékesítői és vezetői tapasztalat. Minden egy helyen, az ingatlan bemutatásától a kulcsátadásig! Hitelminősítés a Fő téri irodánkban a hét minden napján. Legyen közös a sikerünk!

További adatok

  • Azonosító: 1656643
  • Épület szintjei: 2
  • Emelet: -
  • Méret: 67 m2
  • Szobák száma: 3 db
  • Félszobák száma: 0 db
  • Fűtés:
  • Állapot: Újszerű
  • Lift: -
  • Erkély/terasz: -

Elhelyezkedés