Ingatlanok összehasonlítása

Győr-Ménfőcsanakon 4 szobás, dupla garázsos családi ház kiadó!

Győr - Ménfőcsanak
270.000 Ft
1.688 Ft / m2

Leírás

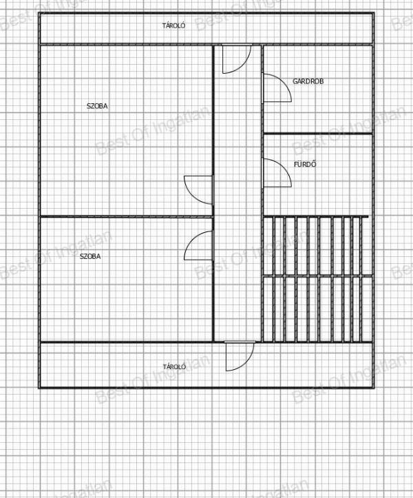
A Best of Ingatlaniroda kiadásra kínál Győr-Ménfőcsanak csendes zsákutcájában 4 szobás, 160 m2-es, 2 garázsos családi házat!   A frissen festett 3 szintes ingatlan jellemzői: Elektromos kapun jutunk be az udvarra, ahol 3 autó parkolására van lehetőség, az elektromos garázskapun belül 2, illetve mellette lévő szerelőaknás garázsban 1 gépjármű tud parkolni.  Továbbiakban itt kapott helyet a kazánház, ahol gáz-és vegyestüzelésű kazán található, valamint egy 20 m2-es tároló és egy nagy borospince.   Az első szinten 2 nagy szoba, előszoba, tágas konyha ebédlővel, kamra, külön wc, és fürdőkádas fürdőszoba wc-vel található. Ez a szint a  hátsó udvar felé egy 40 m2-es fedett terasszal bővül ki, amely családi összejövetelekre kiválóan alkalmas Az egyik szobában egy fatüzeléses cserépkályha is rendelkezésre áll.   Az emeleten szintén 2 tágas szoba, egy konyha, fürdőszoba wc-vel, és 2 tároló (padlásrész) található. A kert nem túl nagy (az egész telek 900 m2), szép árnyas, füvesített és körbekerített.   Bérleti díj 260.000 Ft+ rezsi. A bérléshez 2 havi kaució és közjegyzői okiratba foglalt kiköltözési nyilatkozat szükséges. az ingatlan hosszú távra kiadó!   Az ingatlanról további képek irodánkban megtekinthetőek.   Keressen bizalommal: Tompos Szilvia Best Of Ingatlan +36 30/506-0657   További szolgáltatásaink: díjmentes, bankfüggetlen hitelügyintézés értékbecslés energetikai tanúsítvány ügyvédi ügyintézés biztosítás  

További adatok

  • Azonosító: 1656580
  • Épület szintjei: 3
  • Méret: 160 m2
  • Telek méret: 900 m2
  • Szobák száma: 4 db
  • Félszobák száma: 0 db
  • Fűtés: Egyéb
  • Állapot: Átlagos
  • Építési év: 1970
  • Ház szerkezete: Tégla
  • Erkély/terasz: -
  • Melléképület: -
  • Tetőtér: -
  • Kaució: 0 Ft
  • Bútorozott: -
  • Gépesített: -

Elhelyezkedés