Ingatlanok összehasonlítása

Eladó 48 nm-es 1+1 szobás Lakás Budapest VI. Kerület

Budapest VI. Kerület Rózsa utca
99.000.000 Ft
2.062.500 Ft / m2

Leírás

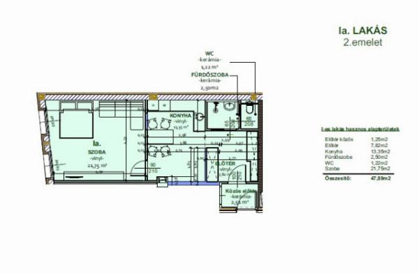
MÉG PÁR LAKÁS ELÉRHETŐ!!! A lakások jelenleg 99%-os készültségi szinten állnak. A használatbavételi engedélyezés folyamatban van. Az építésügyi hatóság engedélyét már megkapták. Az ingatlanok saját albetétként kerülnek bejegyzésre. A fűtésről hőszivattyús rendszer gondoskodik, padlófűtéssel és mennyezeti hűtés-fűtés megoldással. A lakásoknál közös előtér került kialakításra a szomszédos ingatlannal, amely kulturált, zárt, belső közlekedőként funkcionál. Az ingatlan újépítésűnek minősül, és úgynevezett resales konstrukcióban kerül értékesítésre. A szerződéskötés során a beruházó a vevő kijelölési jogát alkalmazza. A társasház teljes felújítása, külső-belső homlokzat megtörtént, lift kialakítása kész, udvar folyamatban, tervezés alatt. Fizetési ütemezés: 85% a szerződéskötéskor (ebből 5% foglalóként) 15% a birtokbaadáskor esedékes

További adatok

  • Azonosító: 1655886
  • Épület szintjei: -
  • Emelet: 2
  • Méret: 48 m2
  • Szobák száma: 1 db
  • Félszobák száma: 1 db
  • Fűtés: Egyéb
  • Állapot: Újszerű
  • Lift: -
  • Erkély/terasz: -

Elhelyezkedés